Nhà Lắp Ghép 2 Tầng Tại Lâm Đồng 84m² – Không Gian Sống Hiện Đại Giữa Thiên Nhiên Cao Nguyên
Thông tin dự án
- Đơn vị thiết kế và thi công: Công ty Cổ phần Kiến trúc DSD
- Tên dự án: Nhà Lắp Ghép 2 Tầng Tại Lâm Đồng
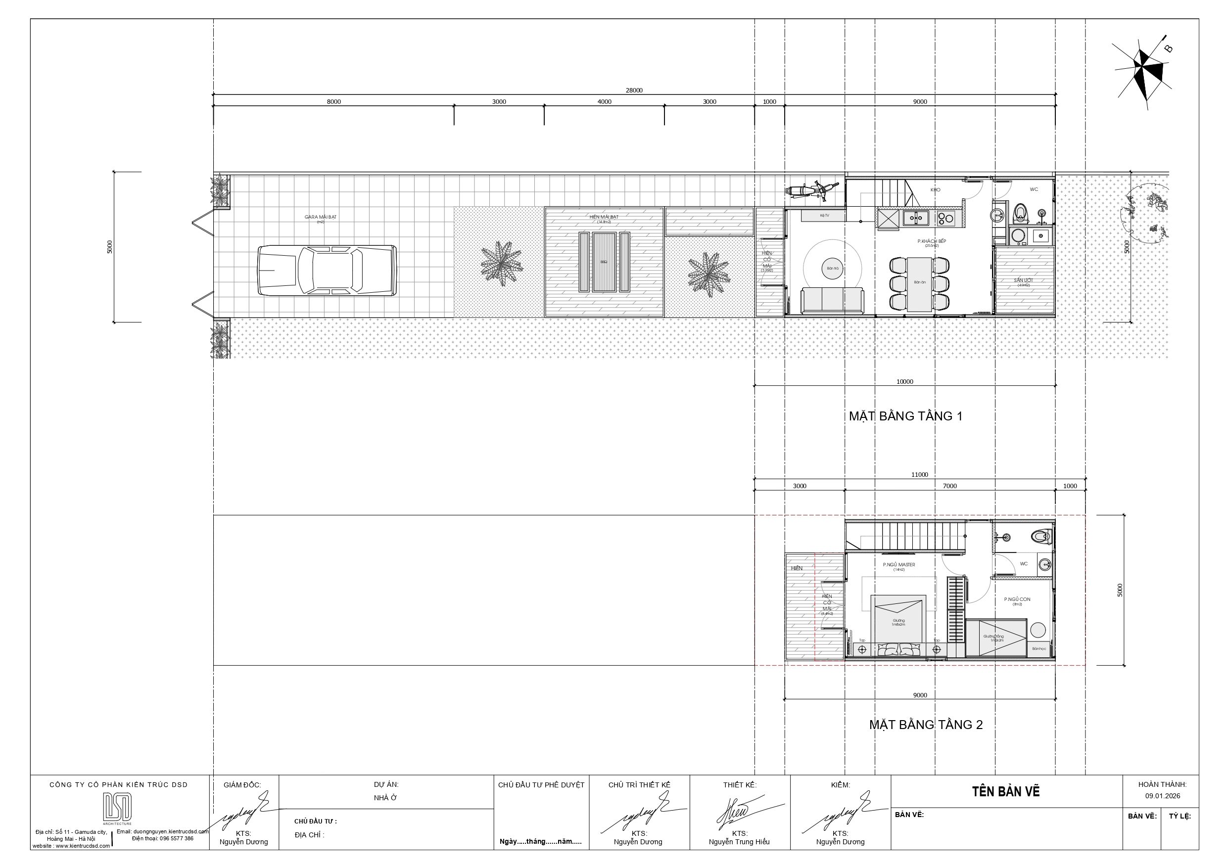
- Diện tích: 84m2
- Số phòng: 1 phòng khách bếp, 2 phòng ngủ, 2 vệ sinh
- Tổng mức đầu tư: 868.000.000 VND
- Thời gian hoàn thiện: Năm 2026
- Địa chỉ: Lâm Đồng, Việt Nam
Giới thiệu khái quát

Công trình nổi bật với kiến trúc hiện đại, hình khối gọn gàng kết hợp hệ mái dốc và vật liệu ấm áp, hài hòa với cảnh quan thiên nhiên đặc trưng của vùng cao nguyên.
Tọa lạc tại Lâm Đồng – nơi có khí hậu mát mẻ quanh năm, mẫu nhà lắp ghép 2 tầng 84m² được phát triển như một giải pháp nhà ở kết hợp nghỉ dưỡng dành cho gia đình trẻ. Không chỉ đáp ứng nhu cầu sinh hoạt cơ bản, công trình còn hướng đến trải nghiệm sống thư thái, gần gũi thiên nhiên.
Với diện tích xây dựng khoảng 84m², ngôi nhà được tổ chức theo hệ module lắp ghép thông minh, tối ưu công năng trên từng mét vuông. Thiết kế ưu tiên các khoảng không gian mở và khu vực đệm như hiên, sân, giúp công trình “thở” tốt hơn trong điều kiện khí hậu cao nguyên.
Thông tin chi tiết dự án
Căn nhà được thiết kế theo phong cách hiện đại – tối giản, với hình khối vuông vức, đường nét gọn gàng và tỷ lệ kiến trúc cân đối. Tổng thể công trình mang hơi hướng của các mẫu villa mini hoặc homestay cao cấp, rất phù hợp với mô hình nghỉ dưỡng.
Điểm nổi bật:
- Thiết kế 2 tầng lệch mái tạo điểm nhấn kiến trúc độc đáo
- Ban công kính tầng 2 mở rộng tầm nhìn, tăng trải nghiệm nghỉ dưỡng
- Hệ cửa kính lớn (full-height glass) giúp kết nối mạnh mẽ giữa không gian trong nhà và thiên nhiên bên ngoài
- Sàn deck gỗ phía trước đóng vai trò như một không gian sinh hoạt ngoài trời (outdoor living space)

Không gian phòng khách tầng 1 tối ưu được không gian mở, thiết kế theo dạng open-plan layout, kết hợp phòng khách và phòng bếp trong cùng một không gian. Thiết kế bố trí liên thông giúp tăng cảm giác rộng rãi dù diện tích không quá lớn. Hệ tủ bếp âm tường với màu sắc tối giản nhưng tối ưu công năng sử dụng. Nội thất tông màu trung tính be – trắng – gỗ tạo cảm giác ấm cúng và vô cùng hiện đại.

Tại không gian tầng 2, có đủ cho không gian riêng tư và thư giãn gồm 2 phòng ngủ riêng biệt. Giường ngủ bố trí hợp lý, tối ưu diện tích lưu thông. Hệ cửa kính lớn mở ra ban công, tăng ánh sáng tự nhiên và thông gió. Tầm nhìn rộng ra bên ngoài, thông thoáng đón được ánh sáng tự nhiên rất dễ chịu.


Không gian phòng ngủ mang tính cá nhân hóa cao, vừa đảm bảo riêng tư vừa giữ được sự kết nối với thiên nhiên.
Khu vực vệ sinh tối giản nhưng nhiều công năng, căn nhà được bố trí 2 nhà vệ sinh, đảm bảo tiện lợi trong quá trình sử dụng. Thiết kế theo phong cách hiện đại với vật liệu chống ẩm, dễ vệ sinh, lavabo treo kết hợp tủ dưới giúp tối ưu không gian, cửa sổ lớn giúp thông gió tự nhiên, hạn chế ẩm mốc. Đây là yếu tố quan trọng giúp nâng cao trải nghiệm sử dụng.

Chỉ với mức đầu tư 868.000.000 đồng trọn gói (bao gồm nội thất, vận chuyển, lắp đặt và hoàn thiện), gia đình đã sở hữu một ngôi nhà 2 tầng 84m2 đầy đủ tiện nghi với chất lượng vật liệu cao cấp. Đây là minh chứng cho thấy giải pháp nhà lắp ghép của DSDHome không chỉ tối ưu về chi phí và thời gian thi công mà còn đảm bảo tính thẩm mỹ và trải nghiệm sống đẳng cấp, bền vững theo thời gian.
>> Xem thêm các dự án khác của DSDhome tại đây.
———-
DSDhome – Đơn Vị Thi Công Nhà Lắp Ghép Uy Tín, Chất Lượng
Để có được một ngôi nhà lắp ghép đẹp và vừa ý, bạn nên lựa chọn một đơn vị thi công chất lượng và có nhiều kinh nghiệm. DSDhome tự hào là đơn vị thi công nhà lắp ghép hàng đầu Việt Nam. Những mẫu thiết kế của DSDhome đều theo tiêu chí là thiết kế đẹp, chất lượng và chi phí tối ưu nhất.
———-
Công ty Cổ phần Đầu tư DSD Group
Trụ sở: Số 11, Gamuda Leparc Yên Sở, Hoàng Mai, Hà Nội
Tổ hợp căn mẫu và khu nghỉ dưỡng trải nghiệm phía Bắc: Xã Hải Thịnh, tỉnh Ninh Bình (TT Thịnh Long, Hải Hậu, tỉnh Nam Định cũ)
Hotline: 096.124.9008
Website: dsdhome.vn
Fanpage: facebook.com/nhalapghepdsdhome
Youtube: youtube.com/@DSDhome








