Thông tin dự án

- Đơn vị thiết kế và thi công: Công ty Cổ phần Kiến trúc DSD
- Tên dự án: Nhà lắp ghép 2 phòng ngủ Bắc Ninh (Khách hàng Mr. Cần)
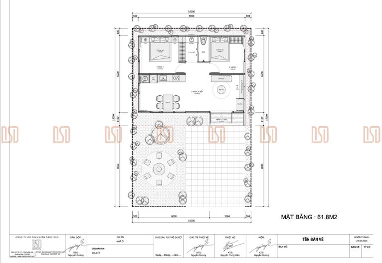
- Diện tích: 61.8m2
- Số phòng: 1 phòng khách bếp, 2 phòng ngủ, 1 vệ sinh
- Tổng mức đầu tư: (Liên hệ DSDHome để nhận báo giá chi tiết theo thời điểm)
- Thời gian hoàn thiện: 21.06.2025 (Thi công trong khoảng 1 tháng 5 ngày)
- Địa chỉ: Thôn Ngang Nội, xã Hiên Vân, Tiên Du, Bắc Ninh
Giới thiệu khái quát

Dự án Nhà Lắp Ghép Bắc Ninh 2 Phòng Ngủ được xây dựng trên khu đất của gia đình với mục đích làm nơi nghỉ dưỡng mỗi cuối tuần cho gia chủ vốn đang sinh sống tại chung cư ở Hà Nội. Thay vì xây dựng truyền thống tốn nhiều thời gian, chú Cần đã tin tưởng lựa chọn giải pháp nhà lắp ghép của DSDHome để có một không gian sống “đơn giản, đẹp và gọn” với thời gian thi công nhanh chóng.
Thông tin chi tiết dự án Nhà Lắp Ghép Bắc Ninh 2 Phòng Ngủ



Với tổng diện tích 61.8m2, căn nhà được thiết kế tối ưu công năng cho gia đình. Điểm đặc biệt nhất của công trình này chính là hệ mái chéo – một yêu cầu riêng của chú Cần để ngôi nhà trở nên gần gũi và phù hợp với cảnh quan làng quê tại Bắc Ninh, thay vì mẫu mái bằng hiện đại phổ biến của DSDHome.
Mặt bằng công trình được bố trí khoa học trên khuôn viên đất rộng (kích thước tổng thể khoảng 62m2):
- Không gian chung: Phòng khách và bếp ăn chiếm diện tích lớn nhất, tạo không gian sinh hoạt chung rộng rãi và ấm cúng.
- Phòng ngủ: Hai phòng ngủ được bố trí đối xứng qua khu vực vệ sinh và hành lang, đảm bảo sự riêng tư nhưng vẫn kết nối chặt chẽ với các không gian khác.
- Khu vực ngoại thất: Phía trước nhà là khoảng sân lát gạch rộng lớn tích hợp khu vực bàn trà ngoài trời, bao quanh bởi hệ thống cây xanh, tạo nên một không gian nghỉ dưỡng thực thụ.
Về nội thất và vật liệu, chú Cần đã lựa chọn tông màu trầm ấm, trung tính, phù hợp với lứa tuổi và mang lại cảm giác sang trọng, bền bỉ. Dù là nhà lắp ghép, nhưng sự chắc chắn trong kết cấu khiến gia chủ hoàn toàn yên tâm, không có cảm giác “tạm bợ” hay rung động khi di chuyển.
Tổng kết
Sau khi hoàn thiện và đưa vào sử dụng, chú Cần chia sẻ: “Đây là một cái nhà quá tuyệt vời, không khác gì là đi nghỉ dưỡng cả”. Sự hài lòng của khách hàng từ khâu tư vấn thiết kế đến đội ngũ thợ thi công nhiệt tình chính là bảo chứng cho chất lượng và uy tín của DSDHome.
>> Xem thêm các dự án khác của DSDhome tại đây.
———-
DSDhome – Đơn Vị Thi Công Nhà Lắp Ghép Uy Tín, Chất Lượng
Để có được một ngôi nhà lắp ghép đẹp và vừa ý, bạn nên lựa chọn một đơn vị thi công chất lượng và có nhiều kinh nghiệm. DSDhome tự hào là đơn vị thi công nhà lắp ghép hàng đầu Việt Nam. Những mẫu thiết kế của DSDhome đều theo tiêu chí là thiết kế đẹp, chất lượng và chi phí tối ưu nhất.
———-
Công ty Cổ phần Đầu tư DSD Group
Trụ sở: Số 11, Gamuda Leparc Yên Sở, Hoàng Mai, Hà Nội
Tổ hợp căn mẫu và khu nghỉ dưỡng trải nghiệm phía Bắc: Xã Hải Thịnh, tỉnh Ninh Bình (TT Thịnh Long, Hải Hậu, tỉnh Nam Định cũ)
Căn mẫu miền Nam: Xã Túc Trưng, huyện Định Quán, tỉnh Đồng Nai
Hotline: 096.124.9008
Website: dsdhome.vn
Fanpage: facebook.com/nhalapghepdsdhome
Youtube: youtube.com/@DSDhome








