1. Giới thiệu khái quát
Đơn vị thiết kế: Công ty cổ phần Kiến trúc DSD
Tên dự án: Nhà lắp ghép Ba Vì
Diện tích: 31,2m2 + 18, 8m2 hiên
Loại dự án: Nhà không có mái hiên
Chi phí: 410, 284, 000 vnđ
Năm: 2022
Tiến độ dự án: Hoàn thành
Kiến trúc sư chính: Nguyễn Ngọc Dương
Thành phố: Ba Vì
Quốc gia: Việt Nam

Ngôi nhà nhỏ xinh này đã được đặc biệt thiết kế cho một gia đình nhỏ có 2 con. Với mong muốn giúp các con có một không gian vui chơi cùng gia đình vào cuối tuần, chủ đầu tư ngôi nhà đã lựa chọn nhà lắp ghép DSDhome để xây dựng một không gian ấm cúng, hòa hợp cùng thiên nhiên.
2. Thực trạng công trình
Nhà lắp ghép DSDhome Ba Vì được yêu cầu xây dựng vừa phải để tận dụng mảnh đất trống cho cảnh quan thiên nhiên, cũng như những hoạt động ngoài trời như tiệc BBQ, khu vui chơi cho các con.

3. Dự án
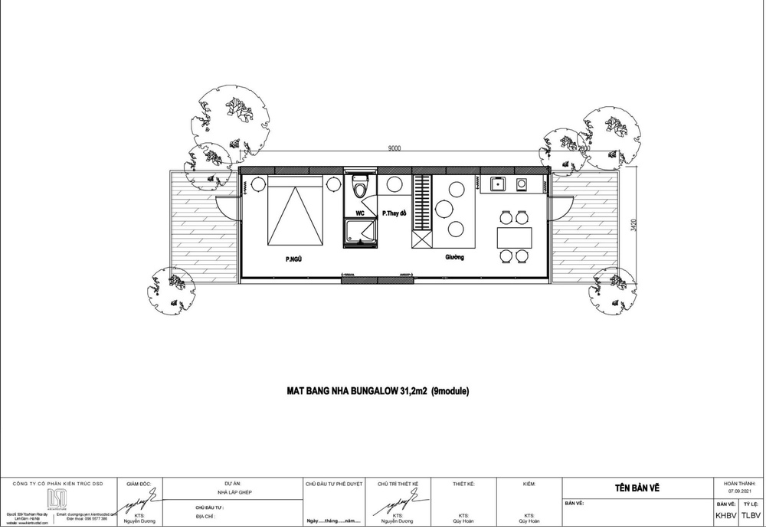
Mẫu nhà lắp ghép được tạo nên bởi 9 module (rộng 31m2 và 2 hiên). Hiên phía trước sẽ là đường đi chính đi vào phòng khách và bếp. Hiên còn lại sẽ được thông qua phòng ngủ.



Phía trên là mái hiên bằng khung sắt và kính cường lực làm cho nắng có thể xuyên qua nhưng vẫn đảm bảo được những ngày mưa nước sẽ hạn chế văng vào nhà. Phần sàn được lát bằng gỗ nhựa 3D và có những đường rãnh nhỏ để giúp thoát nước nhanh hơn, đảm bảo vệ sinh và an toàn cho người sử dụng. Toàn bộ các chi tiết đều được sơn đen tạo sự đồng nhất cho ngôi nhà.

Tuy chỉ với 9 module nhưng nhà được thiết kế rất thông thoáng và không bị tù túng. Bước vào nhà sẽ là một không gian phòng khách kết hợp với bếp nhỏ xinh. Bàn ăn 4 người phù hợp với không gian và công năng sử dụng của gia đình. Bàn ăn được làm bằng gỗ Plywood cao cấp hạn chế được công vênh mang lại thẩm mỹ cho ngôi nhà.

Bếp được thiết kế nhỏ gọn, đơn giản đảm bảo được nhu cầu nấu nướng của chủ nhà. DSDhome còn trang bị hệ thống hút mùi giúp ngôi nhà thông thoáng, hạn chế bị ám mùi đồ ăn. Hệ thống tủ bếp được thiết kế đơn giản với tone trắng hiện đại. Toàn bộ kỹ thuật tủ gỗ được làm tỉ mỉ từng góc cạnh, các khoảng hở được cách đều 2 li.

Tiếp đến là một chiếc giường phản để có thể nghỉ ngơi hoặc là nơi vui chơi của các bé. Toàn bộ độ thất trong nhà đều sử dụng các tông màu trung tính, nhã nhặn tạo không gian rộng rãi và thoáng mát.

Mặc dù ngôi nhà 9 module có kích thước nhỏ gọn nhưng DSDhome vẫn đảm bảo phòng vệ sinh sử dụng kính cường lực làm vách ngăn có sử dụng rèm che không tạo cảm giác tù túng trong không gian. Phòng được chia thành hai phân khu khô và ướt để đảm bảo vệ sinh và có thể sử dụng được hai người cùng một lúc. Lavabo được thiết kế đơn giản với màu đen làm điểm nhấn, trang trí bằng chiếc gương tròn đơn giản nhưng hiện đại.

Phòng ngủ master được thiết kế theo phong cách hiện đại và tối giản, ưu tiên view cảnh rộng ra thiên nhiên để mỗi sáng thức dậy, chủ nhà sẽ có tâm trạng thoải mái và tươi mới nhất. Bên cạnh phòng ngủ là một ban công để có thể đọc sách, uống trà hay quan sát các bạn nhỏ vui chơi.


Ngoài ra, DSDhome còn trang bị thêm một cửa sổ phụ để thông gió, làm nhà không bị bí bách là luôn có không khí tươi cung cấp vào nhà. Toàn bộ nội thất trong phòng đều thiết kế tinh tế và đơn giản. Điểm nhấn là chiếc tab đầu giường hiện đại, và giường gỗ thông nguyên tấm vô cùng chắc chắn.


Toàn bộ hệ thống đèn đều được thiết kế âm trần và quạt gió, máy điều hòa đều được chắn bằng nan chớp, DSDhome mong muốn không để lộ bất cứ kĩ thuật nào ra bên ngoài, để ngôi nhà có thể gọn gàng và thẩm mỹ hơn.

Sử dụng đồng nhất màu xi măng của tấm cemboard cho tường, trần, sàn giữ lại phần thô mộc cho công trình. Kết cấu chịu lực của nhà là sử dụng hệ thống thép và sắt hộp 8mm phù hợp và bền vững với từng địa hình cũng như khí hậu ở các vùng miền. Tiếp đến, là hệ thống tôn xốp cách nhiệt nhằm chống mưa, chống nước thấm và đảm bảo vấn đề chống nóng cho công trình. Phần đáy của công trình được bọc kín bởi tôn đảm bảo được vấn đề chống han gỉ cũng như và côn trùng làm tổ.

—————————-
Thông tin liên hệ
Công ty Cổ phần Kiến trúc DSD
Văn phòng: Số 11, Gamuda Leparc, Yên Sở, Hoàng Mai
Xưởng sản xuất Nam Định: TT Thịnh Long – Huyện Hải Hậu
Hotline: 096 124 9008
Email: dsd@kientrucdsd.com


















