1. Giới thiệu khái quát
- Đơn vị thiết kế: Công ty cổ phần Kiến trúc DSD
- Tên dự án: Nhà lắp ghép Văn Giang
- Loại dự án/Diện tích: 65,8 m2
- Năm: 2022
- Tiến độ dự án: Hoàn thành
- Kiến trúc sư chính: Nguyễn Ngọc Dương
- Thành phố: Hưng Yên
- Quốc gia: Việt Nam

Nhà lắp ghép Văn Giang
Tin tưởng DSDhome là một đơn vị thiết kế nhà và nội thất, có xưởng sản xuất và thi công một cách độc lập, không có sự hỗ trợ từ các đơn vị ngoài. Chính vì thế, anh Cường một kiến trúc sư đã yên tâm sử dụng nhà lắp ghép của DSDhome để quy hoạch dự án cho một vị khách nước ngoài. Anh đã từng sử nhà của DSDhome nên anh hoàn toàn tin tưởng và chốt hợp đồng online.
2. Thực trạng công trình
Con đường vào nhà đất khá xốp và trũng nên DSDhome phải đổ đá lên bề mặt đường đợt khoảng một ngày để đất cứng hơn thì mới có thể vận chuyển các module vào được.
Thiết kế nhà lắp ghép Văn Giang
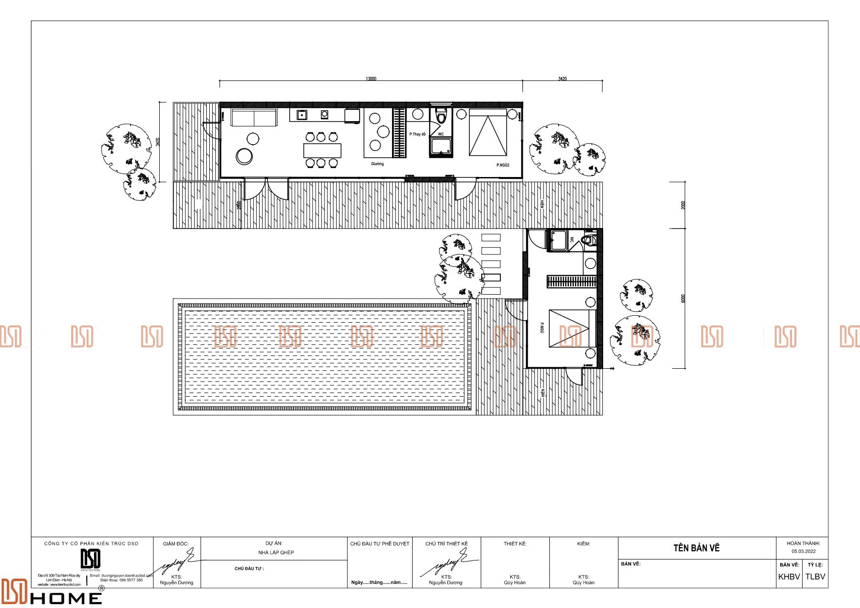
Dự án nhà lắp ghép đẹp Hưng Yên bao gồm 2 phòng ngủ, 2 phòng vệ sinh, 1 phòng khách, 1 phòng bếp. Điểm đặc biệt của dự án này là tận dụng được hết tối đa diện tích của khu đất cũng như phân chia nhà thành hai gian “chính phụ” để trong những trường hợp chúng ta cần sự yên tĩnh, riêng tư nhưng gia đình vẫn có thể vui chơi, tiệc tùng cùng bạn bè ở gian còn lại. Căn nhà này giúp gia đình linh hoạt hơn trong các hoạt động thường ngày, mỗi thành viên đều có thể tận hưởng thư giãn theo cách riêng của mình.

3. Dự án
Hệ thống hiên 53,64 m2 trải dài bao quanh nhà tạo thuận lợi cho sự lưu thông cũng như là có không gian ngoài trời để các bé vui chơi hoặc người lớn có thể thưởng trà, hít thở không khí trong lành. Phía trên và những song sắt kéo dài toàn bộ hiên được sơn chống rỉ đảm bảo thẩm mỹ theo thời gian.

Phía trước nhà lắp ghép Văn Giang
Sử dụng vật liệu thống nhất được thể hiện qua thiết kế từ bên ngoài đến bên trong không gian nhà. Phủ bên ngoài nhà và sàn hiên đều sử dụng gỗ nhựa 3D tinh tế, các chi tiết bằng kim loại như các song sắt, đường viền cửa đều được sơn màu đen đồng bộ với màu gỗ nhựa. Tính thống nhất của vật liệu còn được tăng cường qua cách bố trí thiết kế nhà, các tone màu được thể hiện xuyên suốt từ màu nội thất đến trần, tường sàn. Mục đích tạo một tổng thể hài hòa với phong cách thiết kế, thể hiện rõ ràng sự chăm chút từ tổng thể đến chi tiết.

Kết hợp 2 gian nhà lắp ghép
Cả hai gian nhà đều có hệ thống kính mở view giúp kết nối với môi trường bên ngoài. Và sau mỗi phòng ngủ đều có cửa để ra hiên ngoài, tạo không gian riêng cho thành viên trong nhà cũng như là cung cấp khí tươi vào nhà, giúp nhà trở nên mát mẻ hơn.
Bố trí nội thất bên trong nhà lắp ghép
Phòng khách và bếp được kết nối với nhau, tất cả các đồ nội thất như bàn ăn cho 6 – 8 người, ghế sofa bed đến tủ giá để bát đĩa đều được DSDhome chủ động thiết kế và lắp đặt.
Không gian phòng khách và phòng bếp
Một không gian thú vị khác đó là chiếc giường phản, nội thất này mang tính ứng dụng cao và đa dạng công năng như chỗ các bé vui chơi đọc sách, nghỉ ngơi hoặc là nơi tiếp khách theo kiểu nhật.
Không gian phòng thay đồ và vệ sinh
Tiếp đến là không gian nhà vệ sinh được phân chia thành hai khu: khô và ướt để đảm bảo hai người có thể sử dụng cùng một lúc. Kế bên là tủ quần áo khá to, DSDhome đã tích hợp thiết kế để các thiết bị giặt sấy vào trong không gian này để tiết kiệm diện tích.
Không gian phòng ngủ với thiết kế đơn giản
Phòng ngủ được thiết kế đơn giản với tab đầu giường tinh tế, hiện đại. View hai mặt tiền kính có thể ngắm được cảnh quan bên ngoài giúp gia đình tận hưởng trọn vẹn không gian sống.
————————————————
Thông tin liên hệ
Công ty Cổ phần Kiến trúc DSD
Trụ sở: Số 11, Gamuda Leparc Yên Sở, Hoàng Mai, Hà Nội
Xưởng phía Bắc: Thị trấn Thịnh Long, huyện Hải Hậu, Nam Định
Tổ hợp căn mẫu: Gamuda City, Hoàng Mai, Hà Nội (Cách công viên Yên Sở 200m)
Hotline: 096.124.9008
Website: https://dsdhome.vn





















