Giới thiệu khái quát
- Đơn vị thiết kế và thi công: Công ty Cổ phần Kiến trúc DSD
- Diện tích: 89 m2
- Số phòng: 1 phòng ngủ, 1 phòng khách bếp, 1 WC
- Mức đầu tư: 819 triệu đồng
- Thời gian hoàn thiện: Tháng 5/2024
- Địa chỉ: Đại Lải, Vĩnh Phúc, Việt Nam
Với tổng mức đầu tư 819 triệu đồng cho toàn bộ chi phí vận chuyển, lắp đặt hoàn thiện nội thất cao cấp, ngôi nhà lắp ghép được DSDhome thiết kế hiện đại, sử dụng đá cao cấp Timestone, gỗ MDF, sàn SPC và trần lam nhựa. Với cấu trúc 1 phòng ngủ, 1 phòng khách bếp, 1 WC, ngôi nhà được áp dụng kỹ thuật module cao cấp KT 1130mm, chống nóng, cách âm tốt.
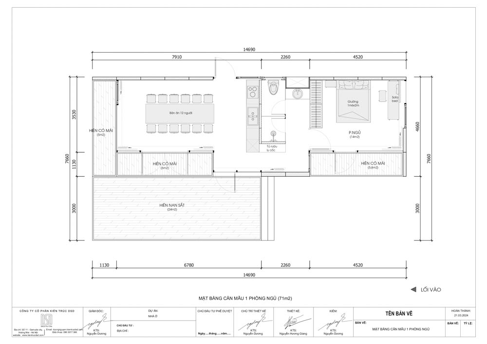
Mặt bằng dự án nhà lắp ghép Vĩnh Phúc 89 m2
Video dự án
Thông tin dự án
Căn nhà tọa lạc trên một khuôn viên rộng lớn, với ngôi nhà được đặt ở trung tâm khu đất. Vị trí địa lý của công trình này rất đặc biệt, nằm giữa một ngọn đồi bao quanh bởi hồ nước, cây cối và núi rừng. Lối kiến trúc hiện đại và độc đáo của DSDhome kết hợp với không gian thiên nhiên tại Vĩnh Phúc đã tạo nên một điểm nhấn thú vị.

Trước khi vào nhà, bạn sẽ bước qua một sảnh hiên rộng rãi, nơi lý tưởng để mời bạn bè hoặc đối tác đến thăm vào những dịp cuối tuần. Không gian sảnh hiên và phòng ăn được thiết kế ưu tiên cho mục đích nghỉ ngơi, tạo nên một không gian thư giãn tuyệt vời.

Khi bước vào trong nhà, bạn sẽ thấy phòng khách bếp với một chiếc bàn dài, nơi lý tưởng để tiếp khách vào những dịp cuối tuần. Nửa căn nhà chính được bố trí với một bàn ăn và tủ bếp trên, tủ bếp dưới, đầy đủ công năng sử dụng.

Phía sau là các vách kính, vừa là cửa ra vào không gian phía sau. DSDhome luôn bố trí cửa thoát khí cho khu bếp, đảm bảo sự thông thoáng. Tổng thể công trình sử dụng gam màu gỗ óc chó kết hợp với màu đen, tạo nên vẻ sang trọng và lịch lãm. Trong các công trình của mình, DSDhome luôn ưu tiên ánh sáng và thiên nhiên, mang đến cảm giác nghỉ dưỡng gần gũi, kết nối với thiên nhiên một cách bền vững.

Hệ thống tủ rượu được thiết kế đặc biệt theo yêu cầu của chủ đầu tư, với các ngăn trưng bày và chứa đựng những chai rượu quý, sẵn sàng để mời khách và bạn bè.

Toàn bộ các phòng ngủ đều được ngăn cách bằng cửa, đảm bảo điều hòa không khí và độ riêng tư. DSDhome bố trí một chiếc táp đầu giường với kiểu dáng tinh tế. Trong phòng ngủ còn có thêm một chiếc sofa bed có thể biến thành giường ngủ, tăng thêm không gian nghỉ ngơi. Khi không sử dụng làm giường, sofa này có thể là nơi ngồi trò chuyện, đọc sách hoặc ngắm cảnh thiên nhiên. Hai táp đầu giường được thiết kế bằng đá xinh xắn, tạo sự hiện đại cho công trình. Không gian phía trước phòng ngủ đều hướng ra cảnh quan thiên nhiên, với cửa mở dễ dàng để bước ra ngoài.

Phòng vệ sinh được thiết kế thông minh, với một bên là tủ, một bên là lavabo, ở giữa và bên kia là khu vệ sinh. Khu tắm ướt và khu vệ sinh được phân chia riêng biệt theo yêu cầu của khách hàng. Sàn của khu tắm là sàn gỗ nhựa, đảm bảo việc thoát nước và công năng sử dụng. Tường và trần của nhà vệ sinh sử dụng đá SPC, đảm bảo thẩm mỹ và độ bền. Không gian khu lavabo rộng rãi, với kích thước 1m30, thoải mái hơn so với các mẫu cũ từ năm 2023.

Kết hợp tất cả những yếu tố này, DSDhome đã tạo nên một công trình hoàn hảo, hiện đại và gần gũi với thiên nhiên.
>> Xem thêm các dự án khác của DSDhome tại đây.
———-
DSDhome – Đơn Vị Thi Công Nhà Lắp Ghép Uy Tín, Chất Lượng
Để có được một ngôi nhà lắp ghép đẹp và vừa ý, bạn nên lựa chọn một đơn vị thi công chất lượng và có nhiều kinh nghiệm. DSDhome tự hào là mang đến giải pháp thông minh cho nhà nghỉ dưỡng, homestay, second home, nhà ở… với không gian sống hiện đại, tiện nghi, tiết kiệm nguyên liệu, thời gian và công sức lao động, đảm bảo công năng sử dụng, thẩm mỹ và mang giá trị nhân văn cao, hoà hợp với thiên nhiên. Những mẫu thiết kế nhà lắp ghép của DSDhome đều theo tiêu chí là thiết kế đẹp, chất lượng và chi phí tối ưu nhất.
———-
Công ty Cổ phần Đầu tư DSD Group
Trụ sở chính: Số 11, Gamuda Leparc Yên Sở, Hoàng Mai, Hà Nội
Tổ hợp căn mẫu và khu nghỉ dưỡng trải nghiệm Miền Bắc: TT Thịnh Long, Hải Hậu, Nam Định
Nhà máy sản xuất: TT Thịnh Long, Hải Hậu, Nam Định
Căn mẫu miền Nam: Xã Túc Trưng, huyện Định Quán, tỉnh Đồng Nai
Hotline: 096.124.9008
Website: https://dsdhome.vn
Fanpage: https://www.facebook.com/nhalapghepdsdhome
Youtube: https://www.youtube.com/@DSDhome

















