1. Giới thiệu khái quát
Đơn vị thiết kế: Công ty cổ phần Kiến trúc DSD
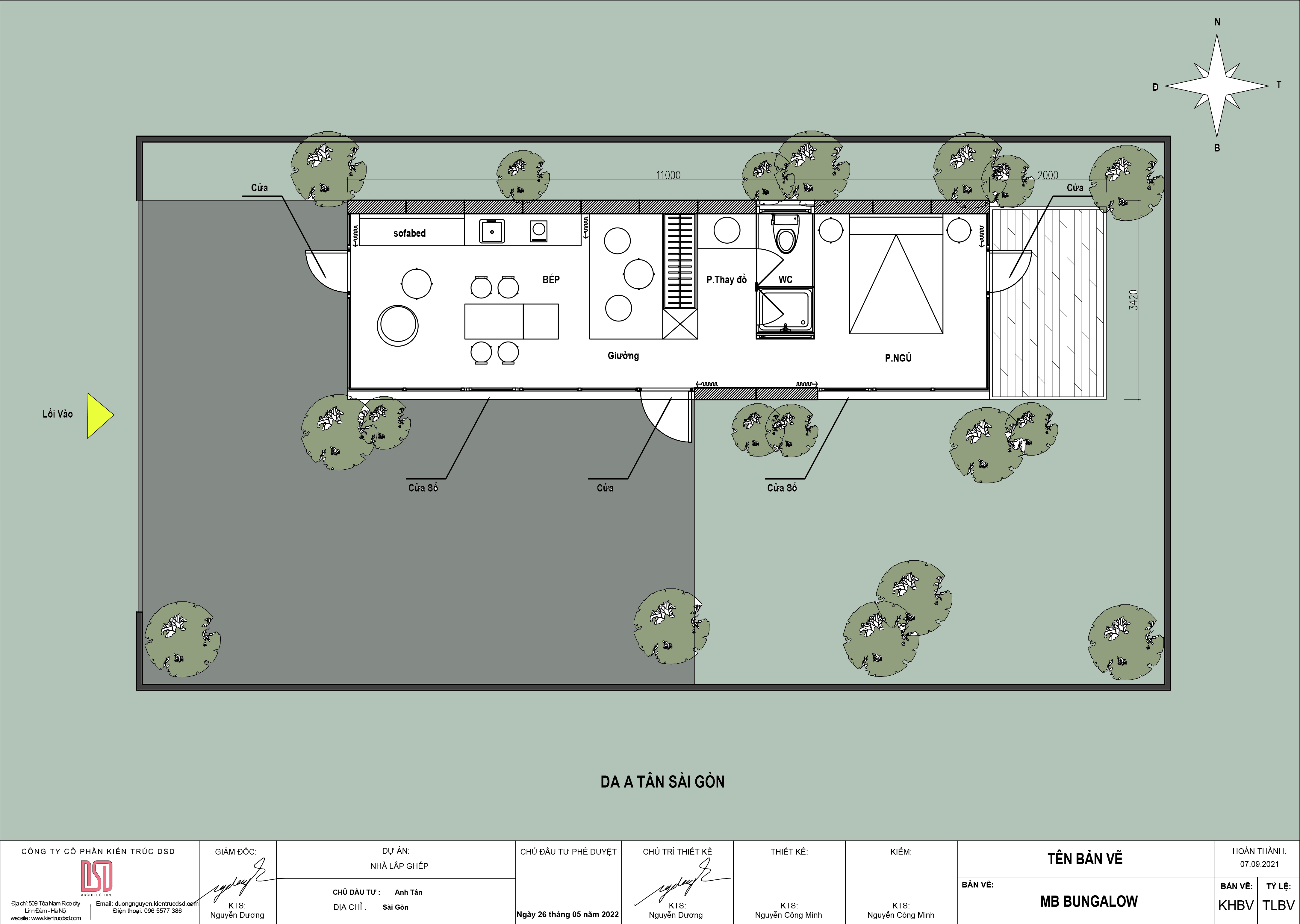
Tên dự án: Nhà lắp ghép Sài Gòn
Loại dự án/Diện tích: 37.4m2, 1 mái hiên 6.8m2
Năm: 2022
Tiến độ dự án: Hoàn thành
Kiến trúc sư chính: Nguyễn Ngọc Dương
Thành phố: Hồ Chí Minh
Quốc gia: Việt Nam
Nhà lắp ghép Sài Gòn là dự án được hoàn thành nhanh chóng theo yêu cầu của anh T. Với mong muốn hoàn thành sớm, hợp hướng, hợp ngày theo phong thủy nên anh T quyết định lựa chọn xây nhà lắp ghép để làm tổ ấm cho mình cùng vợ.
2. Thực trạng công trình
Nhà lắp ghép của DSDhome là công trình có thời gian thi công nhanh chóng và chi phí phù hợp. Anh T đã đến xem mẫu trực tiếp dưới sự tư vấn và hỗ trợ của đội ngũ nhân viên DSDhome. Sau đó anh T đã hoàn thành hợp đồng online, điều này cho thấy anh T tin tưởng vào sự uy tín và chất lượng mà DSDhome mang lại.

Nhà lắp ghép Sài Gòn cao (2m8) hơn các bình thường (2m6) theo yêu cầu của chủ nhà, chủ nhà muốn làm cao để nhà được thông thoáng hơn. Với kết cấu này làm cho ngôi nhà trở nên rộng rãi hơn, đem lại cảm giác thoải mái cho gia chủ.
3. Dự án
Sài Gòn là nơi “đất chật người đông” nên mẫu nhà lắp ghép rất được ưa chuộng bởi những ưu điểm và tiện ích mà nó đem lại. Đặc biệt mẫu nhà này phù hợp cho gia đình 2-3 người ở tại các thành phố lớn. Với thiết kế 1 mái hiên bằng khung sắt có độ bền cao và tận dụng được ánh sáng tự nhiên một cách tốt nhất. Buổi sáng gia chủ có thể phơi nắng, đọc sách, uống trà,…buổi chiều có thể nghỉ ngơi thư giãn sau một ngày làm việc mệt mỏi.

Toàn bộ hệ thống cửa ra vào, cửa sổ đều làm bằng kính cường lực chắc chắn, mang lại tính thẩm mỹ cao cho ngôi nhà và có thể hứng được ánh nắng tự nhiên tạo không gian tươi sáng.
Toàn bộ căn nhà lắp ghép bao gồm tường, sàn nhà được DSDhome sử dụng tông màu trắng xám là chủ đạo đem lại cảm giác tươi mát, sáng sủa cho ngôi nhà. Hệ thống rèm cửa được thiết kế với màu sắc hài hòa đồng bộ với màu sắc của tổng thể ngôi nhà tạo cảm giác dễ chịu cho gia chủ.

Nội thất bố trí trong nhà cũng sử dụng tone màu sáng cho phù hợp với màu sắc của tổng thể căn nhà. Phòng khách được thiết kế mở nối liền với phòng bếp sẽ tạo cảm giác thông thoáng và rộng rãi hơn. Điểm nhấn là chiếc sofa bed màu xanh dương kết hợp với đèn tròn làm nổi bật lên không gian phòng khách. Gia chủ có thể tận dụng để làm nơi đọc sách, nghỉ ngơi thư giãn.
Nối liền với phòng khách là gian bếp với thiết kế không gian mở. Phòng bếp cũng sử dụng tone màu trắng là chủ đạo. Có một chiếc bàn dài phù hợp cho 4-5 người ngồi, tiện lợi khi có khách đến nhà.

Các đồ nội thất đều được lựa chọn để phù hợp với bố trí của căn nhà và đem lại công năng tốt nhất. Thiết kế tủ bếp sử dụng gỗ plywood cao cấp hạn chế cong vênh, DSDhome tỉ mỉ thiết kế các kệ tủ cách đều 2 ly mang lại tổng thể hoàn hảo cho ngôi nhà. Kệ tủ sử dụng màu trắng làm cho không gian bếp sáng sủa và sạch sẽ hơn. Phòng bếp được trang bị đầy đủ máy hút mùi, bồn rửa, bàn ăn thiết kế rộng rãi cho 4-5 người ngồi phù hợp khi có khách đến thăm nhà.

Thiết kế giường phản để em bé chơi, hoặc ngồi đọc sách, có rèm che ngăn cách với bếp tạo không gian riêng tư và tăng tính thẩm mỹ cho công trình. Máy điều hòa được sử hệ thống nan chớp che chắn hạn chế các thiết bị lộ ra ngoài, làm không gian trở nên tinh gọn.

Thiết kế giường ngủ làm bằng gỗ thông chắc chắn đem lại cảm giác thoải mái khi ngủ. Điểm nhấn là chiếc tab đầu giường hiện đại, độc đáo.Nhà vệ sinh được thiết kế với cửa kính có rèm che tạo sự sang trọng cho căn nhà.

Hệ thống đường dây điện, ống nước đều được thiết kế âm tường không gây khó chịu cho gia chủ mà còn đem lại sự hiện đại, tinh tế cho ngôi nhà.
Tuy có diện tích nhỏ nhưng nhà lắp ghép có đầy đủ các không gian sinh hoạt cho gia đình. Không những không tạo cảm giác chật hẹp mà với bố trí kết cấu như vậy, nhà lắp ghép còn lại cảm giác thoải mái khi sinh sống tại đó.
Nhà lắp ghép DSDhome chắc chắn sẽ mang đến trải nghiệm sử dụng tốt nhất cho khách hàng về vấn đề chất lượng luôn đi kèm với yếu tố thẩm mỹ, chính vì vậy mà các sản phẩm nội thất đã được DSDhome lựa chọn kỹ lưỡng để đảm bảo độ bền đẹp. Thi công được giám sát kỹ càng trước khi bàn giao sản phẩm hoàn thiện cho khách hàng.
Nếu bạn đang muốn sở hữu một thiết kế nhà hiện đại, khắc phục triệt để vấn đề thời gian, địa điểm nhưng vẫn muốn khác biệt và mang phong cách riêng của mình thì hãy liên hệ với nhà lắp ghép DSDhome nhé.
————————————————
Thông tin liên hệ
Công ty Cổ phần Kiến trúc DSD
Trụ sở: Số 11, Gamuda Leparc Yên Sở, Hoàng Mai, Hà Nội
Xưởng phía Bắc: Thị trấn Thịnh Long, huyện Hải Hậu, Nam Định
Tổ hợp căn mẫu: Gamuda City, Hoàng Mai, Hà Nội (Cách công viên Yên Sở 200m)
Hotline: 096.124.9008
Website: https://dsdhome.vn
————————————————
Thông tin liên hệ
Công ty Cổ phần Kiến trúc DSD
Trụ sở: Số 11, Gamuda Leparc Yên Sở, Hoàng Mai, Hà Nội
Xưởng phía Bắc: Thị trấn Thịnh Long, huyện Hải Hậu, Nam Định
Tổ hợp căn mẫu: Gamuda City, Hoàng Mai, Hà Nội (Cách công viên Yên Sở 200m)
Hotline: 096.124.9008
Website: https://dsdhome.vn















