Bản vẽ nhà thép tiền chế 2 tầng giúp bạn có một cái nhìn tổng quan hơn về ngôi nhà mà mình sắp sở hữu. Để có được bản vẽ kết cấu nhà thép 2 tầng, kiến trúc sư sẽ thực hiện sau khi trao đổi trực tiếp với gia chủ và đưa đến bản vẽ hoàn thiện nhất để việc thi công nhà lắp ghép trở nên dễ dàng hơn.

Phong cách thiết kế nhà lắp ghép 2 tầng
Tìm hiểu về nhà khung thép tiền chế 2 tầng? Lên bản vẽ nhà thép tiền chế 2 tầng
Nhà khung thép hay nhà khung thép tiền chế 2 tầng có rất nhiều công năng vượt trội, được ứng dụng rộng rãi trong dân dụng như làm nhà ở, second home, văn phòng,… Nhà lắp ghép được thi công bằng cách lắp ghép các cấu kiện sẵn có dựa trên bản vẽ kết cấu nhà thép 2 tầng.
Tại DSDhome, khung thép tiền chế được lựa chọn là dòng thép chất lượng cao, đạt các tiêu chuẩn của Nhật Bản. Phần khung thép này được làm bằng các loại thép hộp và mạ kẽm, độ bền cao và tuổi thọ lên đến 60 năm.

Phối cảnh của một căn nhà lắp ghép 2 tầng
Kiến trúc sư của DSDhome sẽ khảo sát qua mặt bằng, phong cách sống của gia chủ và nhiều yếu tố khác để hoàn thiện được bản vẽ cad nhà thép tiền chế sao cho phù hợp với các tiêu chí được khách hàng đề ra.
Cấu Tạo Và Kết Cấu Nhà Thép Tiền Chế 2 Tầng
Cấu tạo và kết cấu của mẫu nhà khung thép 2 tầng sẽ phụ thuộc vào các yếu tố như chi tiết các hạng mục thi công, địa điểm, ngân sách của gia chủ,… Tuy nhiên, nhà lắp ghép 2 tầng thường bao gồm một số kết cấu chính như kết cấu móng, hệ khung chính, hệ tôn lợp, hệ thống kết cấu phụ, phụ kiện.
Ưu Điểm Của Nhà Khung Thép Tiền Chế 2 Tầng
Nhà lắp ghép được nhiều người lựa chọn vì tính linh hoạt, thẩm mỹ cũng như thời gian thi công ngắn nên ngày càng phù hợp với những người yêu thích lối sống hiện đại. Chính vì những công dụng đáng ghi điểm, nhà tiền chế chính là một giải pháp hữu hiệu về nhà ở trong tương lai.
Trọng Lượng Nhẹ, Tiết Kiệm Chi Phí, Thời Gian
Thiết kế đơn giản, cấu kiện với trọng lượng nhẹ nên khung nhà tiền chế được vận chuyển một cách dễ dàng và linh hoạt hơn. Nhờ vào kết cấu đó sẽ giúp gia chủ tiết kiệm đi một phần chi phí vận chuyển cũng như nguyên vật liệu khi xây nhà. Thêm vào đó quy trình thi công vô cùng nhanh chóng, nhanh gọn nhưng hoàn toàn đảm bảo các tiêu chí về chất lượng và an toàn.

Trọng lượng khung thép nhẹ, linh hoạt trong di chuyển
Thẩm Mỹ Cao
Một ngôi nhà có thẩm mỹ cao hay không phần lớn sẽ phụ thuộc vào việc thiết kế bản vẽ trước khi thi công. Để làm được điều này đòi hỏi kiến trúc sư nhà DSDhome phải có tay nghề cao, nắm bắt được các xu hướng thiết kế hiện đại và mang về sự hài hòa, thẩm mỹ cho ngôi nhà.

Nhà tiền chế 2 tầng với không gian sang trọng
Dễ Dạng Mở Rộng Không Gian
Một công dụng vô cùng ghi điểm của nhà tiền chế đó là dễ dàng mở rộng quy mô nhờ vào khung nhà được lắp ghép bằng các module thép với nhau. Việc mở rộng không gian sẽ giúp cho gia chủ có không gian sống thoải mái, linh hoạt và tiện nghi hơn cũng như tiết kiệm được phần lớn chi phí xây nhà mới.

Dễ dàng mở rộng diện tích giúp không gian nhà nhiều ánh sáng
Tuổi Thọ Cao
So về tuổi thọ thì nhà tiền chế cũng không kém cạnh các ngôi nhà truyền thống, khi có độ bền lên đến 60 năm. Nhờ vào vật liệu lựa chọn khi thi công và bản vẽ có kết cấu chặt chẽ nên nhà lắp ghép có độ bền vững và tuổi thọ cao.
Nhà Dân Dụng Kết Cấu Thép Được Xây Dựng Theo Quy Trình?
Quy trình thi công nhà dân dụng kết cấu thép sẽ diễn ra theo 3 giai đoạn chính. Các giai đoạn này phải tuân thủ nghiêm ngặt, thi công đúng chuẩn để tạo ra ngôi nhà đẹp, bền, an toàn.
-
Bản Vẽ Nhà Thép Tiền Chế 2 tầng
Giai đoạn 1 là lên bản vẽ nhà tiền chế 2 tầng giúp bạn có thể hình dung ra được kết cấu ngôi nhà, lựa chọn và tính toán được các vật liệu xây dựng phù hợp. Đây là giai đoạn quan trọng giúp cho gia chủ tối ưu được nhiều chi phí và bên thi công sẽ kiểm soát được chặt chẽ, tránh được nhầm lẫn, sai sót.
-
Xử Lý Thành Phần
Giai đoạn 2 là xử lý thành phần hay được gọi là gia công cấu kiện. Khi gia công cho ngôi nhà thì nhân công phải tuân thủ các yêu cầu về mặt kỹ thuật mà bản vẽ cad nhà thép tiền chế đưa ra. Mọi yếu tố đều được giám sát, kiểm tra cẩn thận và hạn chế tối đa mọi rủi ro xảy ra.

Nhân công đang sản xuất khung thép nhà tiền chế
-
Xây Dựng Nhà Khung Thép
Sau khi gia công, thành phần của ngôi nhà sẽ được vận chuyển đến nơi để lắp ghép. Quá trình này đòi hỏi các bộ phận thi công phải đọc hiểu được sơ đồ bố trí, tuân thủ các điều kiện để giúp công trình hoàn thiện một cách hiệu quả nhất.

Nhân công đang lắp ghép nhà tiền chế
Tổng Hợp Các Mẫu Bản Vẽ Nhà Khung Thép 2 Tầng Đẹp Nhất
Với không gian 2 tầng, đây là sự lựa chọn giúp khách hàng có sự thoải mái, tiện nghi khi lựa chọn nơi để ở. Việc thiết kế bản vẽ nhà thép tiền chế 2 tầng cũng được kiến trúc sư tối ưu hóa mang đến sự trải nghiệm tốt nhất dành cho khách hàng. Sau đây, DSDhome sẽ giới thiệu đến bạn đọc một số mẫu bản vẽ kết cấu thép nhà 2 tầng đón đầu xu hướng, thiết kế hiện đại:
Mẫu nhà khung thép 2 tầng hiện đại: thiết kế đón ánh sáng giúp gia chủ tiết kiệm được chi phí về điện năng. Không gian thoáng mát thích hợp đối với tệp khách hàng hay sinh hoạt và làm việc tại nhà.

Nhà lắp ghép 2 tầng hiện đại
Mẫu nhà lắp ghép 2 tầng mái thái: nhà mái thái đã không còn xa lạ đối với người dân Việt Nam. Sự kết hợp giữa hiện đại và truyền thống khiến người nhìn cảm giác được sự thanh thoát, cao ráo của ngôi nhà.

Nhà lắp ghép 2 tầng mái thái
Mẫu nhà lắp ghép 2 tầng phong cách biệt thự: Ở một số hộ gia đình đông người, cất nhà tiền chế 2 tầng dạng biệt thự sẽ giúp bạn và gia đình có nhiều không gian sinh hoạt hơn. Ngoài ra, việc thi công nhà tiền chế 2 tầng cũng giúp gia chủ tiết kiệm được kha khá chi phí khi xây nhà.

Nhà lắp ghép theo phong cách biệt thự
Mẫu nhà lắp ghép 2 tầng kết hợp hồ bơi: mẫu nhà tiền chế này thường hướng đến những bạn trẻ có lối sống hiện đại và yêu thích sự năng động. Với hồ bơi rộng rãi, bạn hoàn toàn có thể tổ chức các bữa tiệc quanh hồ bơi cùng bạn bè và gia đình.

Nhà lắp ghép kết hợp không gian hồ bơi
Mẫu nhà lắp ghép 2 tầng đơn giản: Mẫu nhà được thiết kế theo phong cách đơn giản nhưng không kém phần sang trọng và có tính thẩm mỹ cao. Ngoài ra, nếu muốn mở rộng nhà hoặc thêm tầng thì mô hình nhà lắp ghép này sẽ giúp gia chủ dễ dàng thực hiện điều đó mà không làm ảnh hưởng đến kết cấu chung của toàn bộ ngôi nhà.

Nhà tiền chế 2 tầng đơn giản nhưng không kém phần sang trọng
***Xem thêm: Giá thi công nhà tiền chế
Bản Vẽ Nhà Khung Thép Tiền Chế 2 Tầng Cho Người Mới Bắt Đầu Thiết Kế
Giống với mẫu nhà lắp ghép 2 tầng, nhà tiền chế cũng phải có bản vẽ chi tiết trước khi tiến hành lắp ghép để hạn chế những sai sót trong thi công. Bản vẽ nhà khung thép tiền chế 2 tầng cơ bản phải liên quan mật thiết đến tổng thể ngôi nhà, phản ánh rõ ràng các chi tiết về cấu tạo cũng như thiết kế.

Bản vẽ nhà khung thép tiền chế 2 tầng cơ bản
-
Bản Vẽ Mặt Tiền Ngôi Nhà
Mặt tiền nhà lắp ghép hay còn gọi là mặt đứng là nơi thể hiện toàn bộ hình dạng và kích thước của ngôi nhà kể cả phần mái. Mặt tiền chính là phần quan trọng của ngôi nhà, là điểm mấu chốt tăng vẻ đẹp cũng như đẳng cấp của ngôi nhà.

Bản vẽ mặt tiền nhà lắp ghép 2 tầng
-
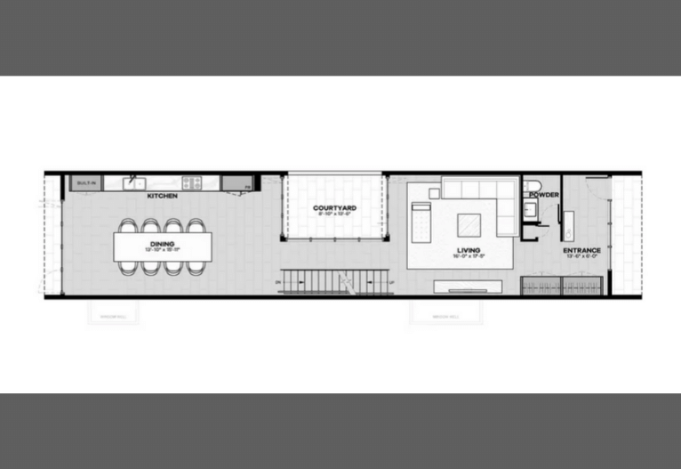
Bản Vẽ Thiết Kế Công Năng Tầng 1
Bản vẽ công năng tầng 1 có thể cho chúng ta biết được số người, nội thất của ngôi nhà hay phong cách sống và sinh hoạt của gia chủ. Chính vì vậy, việc tìm hiểu nhu cầu của khách hàng trước khi thiết kế bản vẽ công năng tầng 1 là vô cùng quan trọng.

Bản vẽ thiết kế công năng tầng 1
-
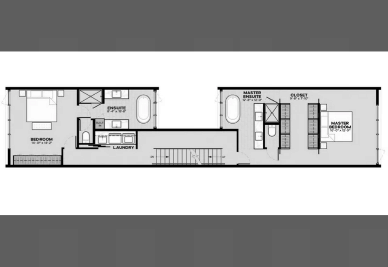
Bản Vẽ Thiết Kế Mặt Bằng Công Năng Tầng 2
Thông thường, các bản vẽ công năng tầng 2 được các kiến trúc sư thiết kế làm các phòng ngủ, tùy vào hộ gia đình sẽ mật độ phân bổ thích hợp. Việc thiết kế được mô phỏng trên bản vẽ đôi khi phải đáp ứng một số yếu tố mà gia chủ đưa ra như phong thủy, phong cách và nội thất,…

Bản vẽ thiết kế công năng tầng 2
-
Bản Vẽ Mặt Cắt Của Ngôi Nhà
Bản vẽ mặt cắt là nơi thể hiện phần không gian của ngôi nhà. Bản vẽ này được cắt theo chiều dọc của bản vẽ mặt tiền, thể hiện các thông số về chiều cao của nhà, chiều cao của từng tầng, kích thước tổng quan của các bộ phận trong ngôi nhà.

Bản vẽ mặt cắt công trình
Báo giá thi công bản vẽ nhà tiền chế 2 tầng
Dựa trên nhu cầu và mong muốn của khách hàng cũng như sau khi được cung cấp đầy đủ thông tin về quy mô, diện tích, địa điểm,…DSDhome sẽ tư vấn và lên phương án để thiết kế bản vẽ, hoàn thiện và trình bày trực tiếp với khách hàng. Báo giá thi công bản vẽ sẽ được tính theo đơn vị m2, tùy vào quy mô và mẫu nhà sẽ có báo giá khác nhau. Dưới đây là bảng báo giá nhà thép tiền chế 2 tầng mới nhất 2022:

Bảng báo giá nhà tiền chế 2 tầng mới nhất 2022
Tiêu chí đánh giá nhà thép tiền chế
Tiêu chí đánh giá phụ thuộc vào từng giai đoạn thi công nhà thép tiền chế. Để hoàn thiện ngôi nhà, các kiến trúc sư phải tính toán tỉ mỉ, cẩn thận và kỹ lưỡng để đảm bảo được tiêu chí an toàn, chất lượng và thẩm mỹ ngay từ giai đoạn lên bản vẽ. Một số tiêu chí được đưa ra như mức độ an toàn, tiến độ thi công, tính thẩm mỹ,…
Với thông tin trên, hi vọng bạn sẽ phần nào nắm rõ được quy trình thiết kế bản vẽ nhà thép 2 tầng cũng như thi công nhà thép 2 tầng tối ưu chi phí nhất. Nếu như bạn cần thêm thông tin về nhà lắp ghép, hãy liên hệ ngay cho DSDhome để nhận được sự tư vấn nhiệt tình nhất.
——————
Thông tin liên hệ
Công ty Cổ phần Kiến trúc DSD
Showroom HN: Số 11, Gamuda Leparc, Yên Sở, Hoàng Mai
Hotline HN: 096 124 9008
Xưởng sản xuất Nam Định: TT Thịnh Long – Huyện Hải Hậu
Xưởng sản xuất Vũng Tàu: Phước Thọ, Phước Hưng, Long Điền, Tp. Bà Rịa
Nhà lắp ghép mẫu: Đường số 3, Long Mỹ ,Đất Đỏ, Bà Rịa, Vũng Tàu.
Email: dsd@kientrucdsd.com
Website: DSDHome.vn
