Giới thiệu khái quát
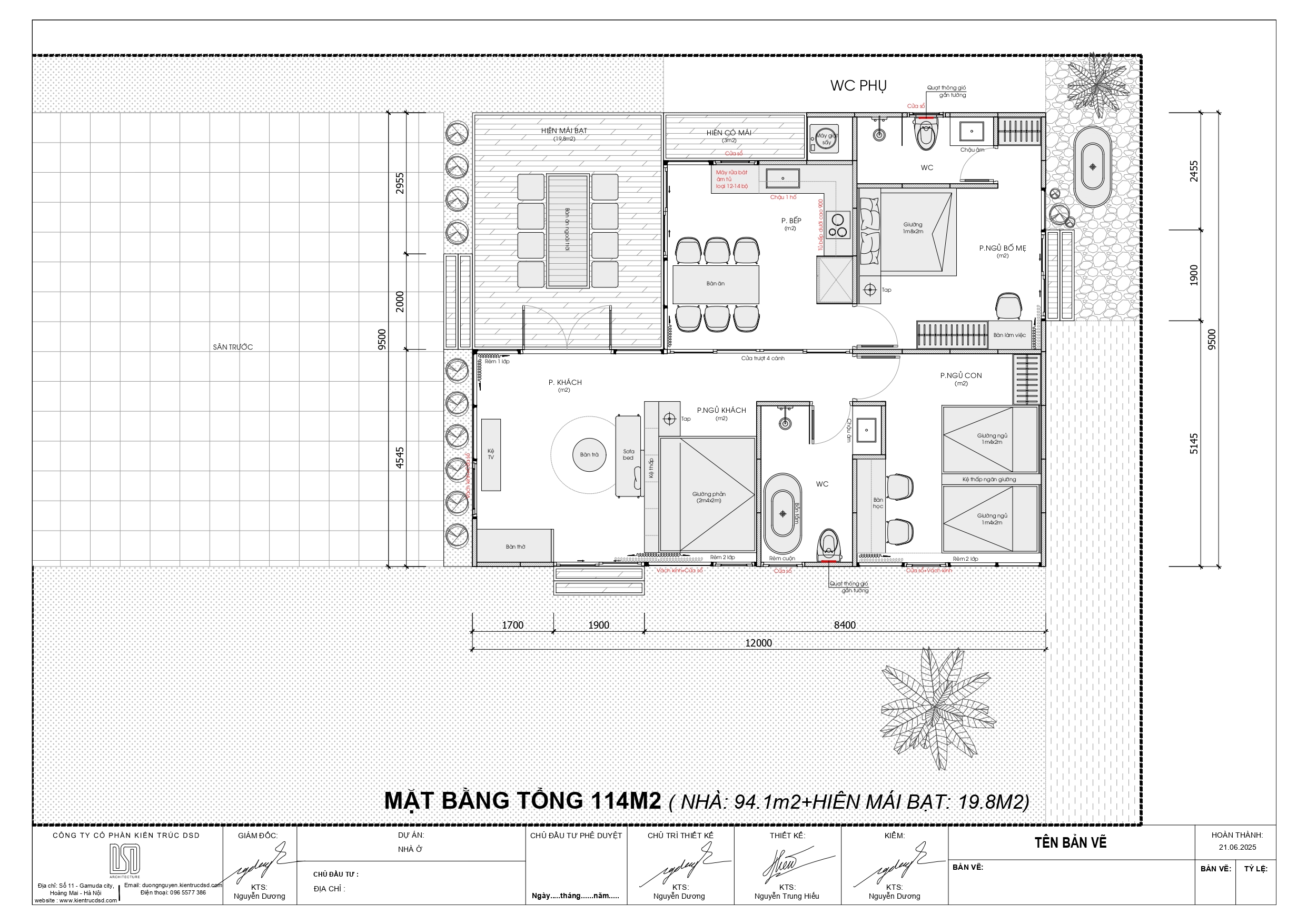
Dự án nhà lắp ghép cao cấp 114m2 là mẫu nhà ở hiện đại được thiết kế dành cho gia đình có từ 3–5 thành viên, đề cao sự tiện nghi, riêng tư và tối ưu không gian sinh hoạt. Công trình có tổng diện tích 114m², trong đó diện tích nhà chính là 94.1m² và khu vực hiên mái bạt chiếm 19.8m². Thiết kế kết hợp giữa hiên mái đặc và hiên mái bạt giúp tăng diện tích sử dụng, đồng thời tạo sự linh hoạt trong sinh hoạt ngoài trời.
Hệ cửa trượt được sử dụng trong toàn bộ công trình, giúp tiết kiệm diện tích, tăng tính hiện đại và tối ưu khả năng lấy sáng tự nhiên cho không gian bên trong.

Thông tin cơ bản
-
Đơn vị thiết kế và thi công: Công ty Cổ phần Kiến trúc DSD
-
Tên sản phẩm: Nhà lắp ghép cao cấp 114m2
-
Diện tích: 114m2 (nhà 94.1m2 + hiên mái bạt 19.8m2)
- Hệ mái: Hiên mái đặc, hiên mái bạt 19.8m2
-
Công năng: 1 Phòng khách, 1 phòng bếp, 3 phòng ngủ, 2 nhà vệ sinh
-
Mức giá ưu đãi ra mắt: 1.177.765.000 VND (Đã bao gồm đầy đủ nội thất)
-
Thời gian hoàn thiện: Năm 2026

Thông tin chi tiết
Công trình có tổng diện tích 114m², trong đó diện tích nhà ở khoảng 94.1m² và khu hiên mái bạt rộng 19.8m². Phần hiên đóng vai trò mở rộng không gian sử dụng, mang đến khu vực sinh hoạt ngoài trời linh hoạt và thoải mái.
Mặt bằng được thiết kế theo dạng trải dài, giúp phân tách rõ ràng giữa khu vực sinh hoạt chung và không gian riêng tư. Nhờ đó, ngôi nhà vừa đảm bảo sự kết nối trong sinh hoạt, vừa giữ được tính riêng tư cần thiết cho từng thành viên.
Phòng khách được bố trí ở phía trước, liên kết trực tiếp với khu sân, tạo cảm giác thông thoáng và đón ánh sáng tự nhiên hiệu quả. Đây là không gian sinh hoạt chính, phù hợp cho việc tiếp khách và quây quần gia đình.

Khu bếp và phòng ăn nằm ở vị trí trung tâm, được thiết kế liền mạch với phòng khách. Bàn ăn lớn đáp ứng nhu cầu sử dụng cho nhiều người, thuận tiện cho các bữa ăn gia đình hoặc tiếp đón khách.

Không gian nghỉ ngơi bao gồm 3 phòng ngủ được bố trí hợp lý. Phòng ngủ master rộng rãi, gần khu vệ sinh riêng, mang lại sự tiện nghi cho gia chủ. Phòng ngủ thứ hai có thể linh hoạt sử dụng làm phòng khách, phòng làm việc hoặc phòng đa năng. Phòng ngủ còn lại được thiết kế với 2 giường đơn, phù hợp cho trẻ nhỏ hoặc nhiều người sử dụng.



Hai khu vệ sinh được phân bổ khoa học, bao gồm một WC chung và một WC phụ ở phía sau hoặc gần khu bếp. Cách bố trí này giúp tối ưu việc sử dụng, tránh bất tiện trong giờ cao điểm.


Khu hiên mái bạt phía trước với diện tích khoảng 19.8m² đóng vai trò như một không gian đệm, có thể sử dụng làm nơi thư giãn, ăn uống ngoài trời hoặc tổ chức các hoạt động gia đình.
Ngoài ra, công trình còn có sân trước rộng rãi, giúp tăng tính kết nối với cảnh quan bên ngoài và cải thiện khả năng thông gió tự nhiên cho toàn bộ ngôi nhà.
Vật liệu
Khung kết cấu: Công trình sử dụng hệ khung thép mạ cường độ cao (G550), đóng vai trò kết cấu chính, đảm bảo độ bền, khả năng chịu lực và thi công nhanh.

- Tường: Tường hoàn thiện với tông trắng sứ, mang lại cảm giác sạch sẽ, sáng và hiện đại, đồng thời giúp không gian rộng và thoáng hơn.
- Sàn (SPC-P0006): Sàn SPC vân gỗ màu sáng, có khả năng chống nước, chống trầy xước và dễ vệ sinh, phù hợp với điều kiện sử dụng lâu dài.
- Trần (mã 208): Trần sử dụng vật liệu hoàn thiện tông gỗ ấm, giúp cân bằng với màu sáng của tường và tạo cảm giác ấm cúng cho không gian.
- Gỗ nội thất (388EV): Hệ tủ và đồ nội thất sử dụng gỗ công nghiệp phủ bề mặt vân gỗ, đảm bảo tính thẩm mỹ, đồng bộ và tối ưu chi phí.
- Nẹp T (màu đen): Nẹp hoàn thiện màu đen dùng tại các vị trí tiếp giáp vật liệu, tạo điểm nhấn tinh tế và tăng độ sắc nét cho chi tiết nội thất.
- Rèm vải (1605-24): Rèm vải màu trung tính giúp điều tiết ánh sáng, tăng tính riêng tư và bổ sung yếu tố mềm mại cho không gian.
- Sàn WC (M1002): Sàn vệ sinh sử dụng gạch chống trơn, đảm bảo an toàn khi sử dụng trong môi trường ẩm ướt.
-
Tường WC (TH-64): Tường WC sử dụng vật liệu chống ẩm, dễ vệ sinh và có độ bền cao.
-
Đá bếp (màu trắng): Mặt bếp đá màu trắng, sạch sẽ, dễ lau chùi và tạo cảm giác hiện đại.
-
Mặt dựng bếp (PVC-PN03-6VD): Tấm ốp bếp PVC giả đá/vân mây, giúp chống bám bẩn và tăng tính thẩm mỹ.
-
Sàn hiên (màu nâu): Sàn hiên sử dụng vật liệu vân gỗ màu nâu, tạo sự chuyển tiếp hài hòa giữa không gian trong nhà và ngoài trời.
Tổng kết
Dự án nhà lắp ghép cao cấp mới nhất 114m² là lựa chọn lý tưởng cho những gia đình đang tìm kiếm một không gian sống tiện nghi, hiện đại và tối ưu chi phí. Với thiết kế hợp lý, vật liệu bền vững và khả năng ứng dụng cao, công trình không chỉ đáp ứng nhu cầu ở mà còn phù hợp với xu hướng sống linh hoạt và bền vững hiện nay.
>> Xem thêm các dự án khác của DSDhome tại đây.
DSDhome – Đơn Vị Thi Công Nhà Lắp Ghép Uy Tín, Chất Lượng
———-
Công ty Cổ phần Đầu tư DSD Group
Trụ sở: Số 11, Gamuda Leparc Yên Sở, Hoàng Mai, Hà Nội
Tổ hợp ăn mẫu và khu nghỉ dưỡng trải nghiệm phía Bắc: TT Thịnh Long, Hải Hậu, Nam Định
Chi nhánh miền Nam: 256 Độc Lập, Phú Hà, Phú Mỹ, TP. Hồ Chí Minh
Hotline: 096.124.9008
Website: https://dsdhome.vn
Fanpage: https://www.facebook.com/nhalapghepdsdhome
Youtube: https://www.youtube.com/@DSDhome

















