Giới thiệu khái quát
Dự án nhà lắp ghép mẫu nhà 2 tầng là một trong những công trình tiêu biểu trong phân khúc nhà ở cao cấp, nơi hội tụ giữa thiết kế kiến trúc hiện đại, công năng tối ưu và trải nghiệm sống vượt trội. Với tổng diện tích lên đến 167m², công trình không chỉ đơn thuần là nơi ở mà còn là không gian thể hiện phong cách sống và gu thẩm mỹ của gia chủ.
Mức đầu tư 2.087.500.000 VNĐ phản ánh rõ giá trị của một công trình được đầu tư bài bản từ thiết kế, vật liệu đến trải nghiệm sử dụng, mang lại sự cân bằng hoàn hảo giữa chất lượng và đẳng cấp.
Thông tin cơ bản
-
Đơn vị thiết kế và thi công: Công ty Cổ phần Kiến trúc DSD
-
Tên sản phẩm: Nhà lắp ghép 167m2
- Số tầng: 2 tầng
-
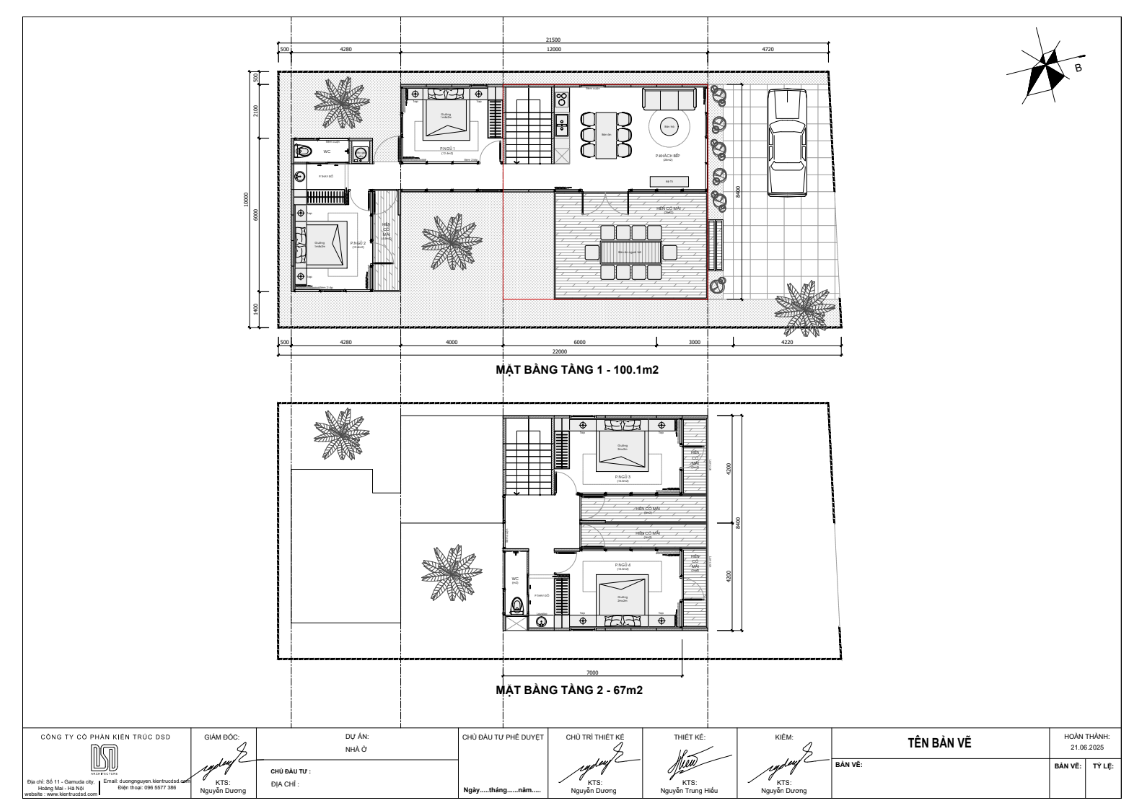
Diện tích: 167m2 (Mặt bằng tầng 1 100.1m2; mặt bằng tầng 2 67m2)
-
Công năng: 4 phòng ngủ; 2 WC; 1 Phòng khách bếp
-
Mức giá ưu đãi ra mắt: 2.087.500.000 vnd (Đã bao gồm đầy đủ nội thất)
-
Thời gian hoàn thiện: Năm 2026

Thông tin dự án
Công trình có tổng diện tích 167m², trong đó tầng 1 chiếm 100.1m² và tầng 2 là 67m². Thiết kế 2 tầng giúp phân tầng không gian rõ ràng, tạo nên sự tách biệt tinh tế giữa khu vực sinh hoạt chung và không gian nghỉ ngơi riêng tư.


Tổng thể công năng bao gồm 4 phòng ngủ, 2 nhà vệ sinh và 1 không gian phòng khách kết hợp bếp, được tổ chức khoa học nhằm mang đến sự tiện nghi tối đa cho gia đình nhiều thế hệ.
Tầng 1 được thiết kế như trái tim của ngôi nhà, nơi diễn ra hầu hết các hoạt động sinh hoạt chung. Không gian phòng khách kết hợp bếp rộng 25m² được tổ chức theo lối mở, tạo sự liền mạch và thoáng đãng, đồng thời tối đa hóa ánh sáng tự nhiên. Đây không chỉ là nơi sinh hoạt mà còn là không gian kết nối cảm xúc giữa các thành viên trong gia đình.
Hai phòng ngủ tại tầng 1, mỗi phòng 12.4m², được bố trí hợp lý nhằm mang lại sự thuận tiện cho người lớn tuổi hoặc thành viên cần không gian riêng ở tầng trệt. Sự tinh tế trong cách sắp xếp giúp đảm bảo tính riêng tư mà vẫn giữ được sự kết nối tổng thể.
Khu hiên có mái rộng 25m² phía trước đóng vai trò như một không gian chuyển tiếp đẳng cấp, nơi gia chủ có thể tận hưởng những khoảnh khắc thư giãn, tiếp khách hoặc tổ chức các hoạt động ngoài trời trong một không gian thoáng đãng và gần gũi thiên nhiên.
Tầng 2 là không gian nghỉ ngơi riêng tư, được thiết kế yên tĩnh và tách biệt. Phòng ngủ master diện tích 15.5m² mang đến trải nghiệm nghỉ dưỡng cao cấp ngay trong chính ngôi nhà, trong khi phòng ngủ còn lại linh hoạt cho các thành viên hoặc khách lưu trú.
Khu vệ sinh tại mỗi tầng được bố trí hợp lý, đảm bảo sự tiện nghi và tối ưu hóa trải nghiệm sử dụng trong sinh hoạt hằng ngày.
Vật liệu & tiêu chuẩn hoàn thiện
Công trình sử dụng hệ khung thép mạ kẽm cường độ cao, mang lại kết cấu vững chắc và độ bền vượt trội theo thời gian. Hệ tường, mái và sàn được lựa chọn từ các vật liệu cao cấp, có khả năng cách nhiệt, chống ồn và thích nghi tốt với điều kiện khí hậu Việt Nam.
Toàn bộ vật liệu hoàn thiện và nội thất đều được lựa chọn kỹ lưỡng, hướng đến sự tinh tế trong từng chi tiết. Từ màu sắc, chất liệu đến cách bố trí đều góp phần tạo nên một không gian sống sang trọng, hiện đại và đồng nhất.
Ưu điểm vượt trội
Điểm nổi bật của dự án không chỉ nằm ở quy mô mà còn ở cách tổ chức không gian mang tính chiến lược. Thiết kế 2 tầng giúp tối ưu diện tích sử dụng, đồng thời nâng cao trải nghiệm sống với sự phân tách rõ ràng giữa các khu chức năng.
Công nghệ lắp ghép hiện đại giúp rút ngắn thời gian thi công nhưng vẫn đảm bảo chất lượng và độ chính xác cao. Điều này không chỉ giúp tối ưu chi phí mà còn đảm bảo công trình đạt tiêu chuẩn cao về kỹ thuật và thẩm mỹ.
Không gian hiên rộng, hệ phòng ngủ đa dạng cùng thiết kế mở là những yếu tố tạo nên giá trị sống khác biệt, mang lại cảm giác thoải mái, sang trọng và gần gũi thiên nhiên.
Tổng kết
Nhà lắp ghép 2 tầng premium 167m² là minh chứng rõ nét cho xu hướng nhà ở cao cấp hiện đại: linh hoạt, bền vững và giàu trải nghiệm. Đây không chỉ là một ngôi nhà, mà là một không gian sống được “thiết kế để tận hưởng”, nơi mỗi chi tiết đều hướng đến sự tiện nghi, đẳng cấp và giá trị lâu dài.
>> Xem thêm các dự án khác của DSDhome tại đây.
DSDhome – Đơn Vị Thi Công Nhà Lắp Ghép Uy Tín, Chất Lượng
Để kiến tạo một công trình lắp ghép đạt đến chuẩn mực cao về thẩm mỹ, công năng và giá trị lâu dài, việc lựa chọn đơn vị thi công không chỉ là quyết định kỹ thuật mà còn là lựa chọn về tầm nhìn. DSDhome theo đuổi triết lý phát triển không gian sống như một “tác phẩm kiến trúc tinh gọn” – nơi mỗi chi tiết đều được tính toán, mỗi vật liệu đều có lý do tồn tại và mỗi giải pháp đều hướng đến trải nghiệm trọn vẹn.
Không dừng lại ở việc xây dựng, DSDhome tập trung vào việc kiến tạo giá trị sống thông qua sự kết hợp giữa thiết kế đương đại, công nghệ lắp ghép tiên tiến và quy trình thi công chuẩn hóa. Mỗi công trình là một tổng thể hài hòa giữa thẩm mỹ, hiệu suất sử dụng và độ bền theo thời gian, mang đến cho khách hàng không chỉ một không gian ở, mà là một chuẩn mực sống khác biệt – tinh tế, bền vững và mang dấu ấn riêng.
———-
Công ty Cổ phần Đầu tư DSD Group
Trụ sở: Số 11, Gamuda Leparc Yên Sở, Hoàng Mai, Hà Nội
Tổ hợp ăn mẫu và khu nghỉ dưỡng trải nghiệm phía Bắc: TT Thịnh Long, Hải Hậu, Nam Định
Chi nhánh miền Nam: 256 Độc Lập, Phú Hà, Phú Mỹ, TP. Hồ Chí Minh
Hotline: 096.124.9008
Website: https://dsdhome.vn
Fanpage: https://www.facebook.com/nhalapghepdsdhome
Youtube: https://www.youtube.com/@DSDhome




