Giới thiệu khái quát
Nhà lắp ghép 178m² là mẫu nhà 2 tầng được thiết kế theo phong cách hiện đại, hướng đến không gian sống rộng rãi, tiện nghi và tối ưu cho gia đình nhiều thành viên. Với quy mô lớn cùng cách bố trí công năng khoa học, công trình không chỉ đáp ứng nhu cầu sinh hoạt mà còn thể hiện phong cách sống đẳng cấp của gia chủ.
Với mức đầu tư khoảng 2.136.000.000 VNĐ, đây là lựa chọn lý tưởng trong phân khúc nhà lắp ghép cao cấp, mang lại sự cân bằng giữa chất lượng, thẩm mỹ và hiệu quả chi phí.

Thông tin công trình
-
Đơn vị thiết kế và thi công: Công ty Cổ phần Kiến trúc DSD
-
Tên sản phẩm: Nhà lắp ghép 178m2
-
Diện tích: 178m2
- Số tầng: 2 tầng
-
Công năng: 4 phòng ngủ, 1 phòng khách bếp, 5WC. Hiên mái đặc
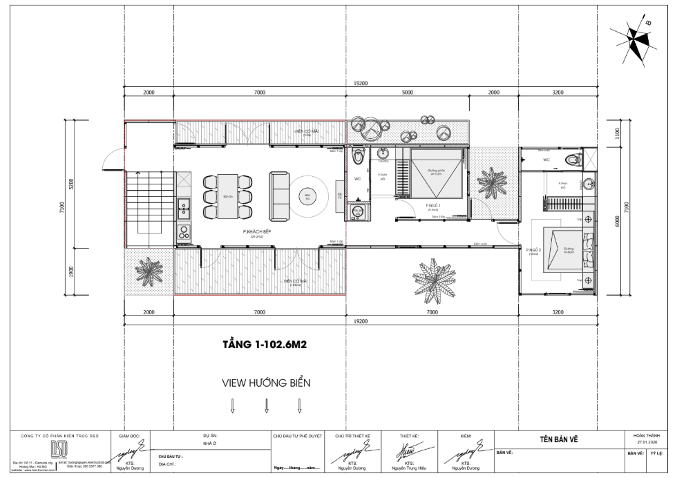
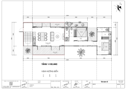
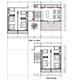
- Tầng 1: 1 phòng khách bếp; 2 phòng ngủ; 3 WC (Tổng diện tích:117.8m2)
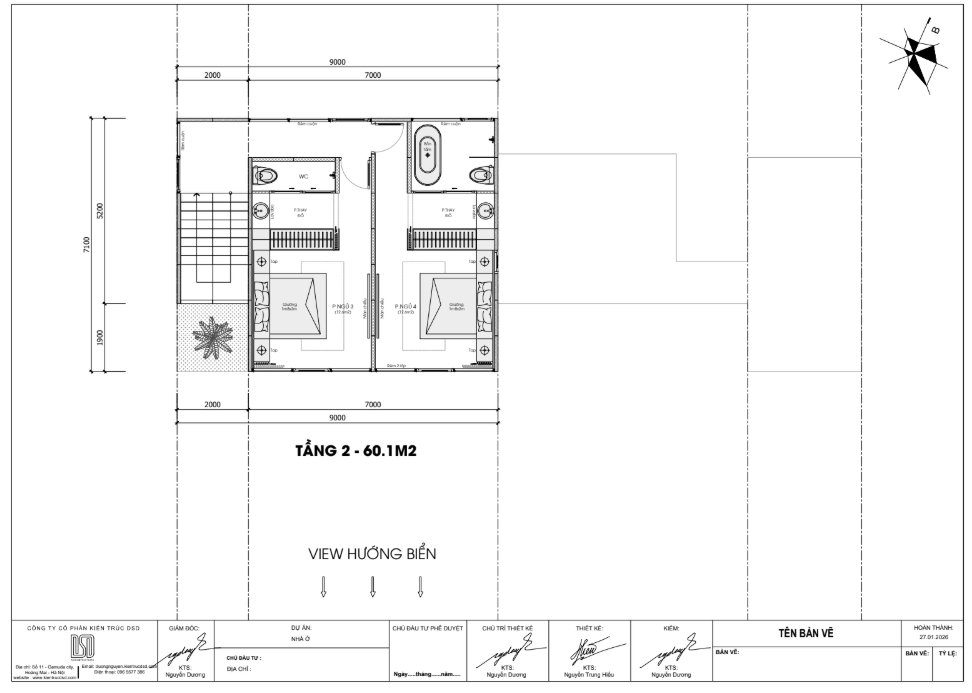
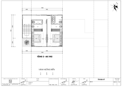
- Tầng 2: 2 phòng ngủ; 2WC (diện tích: 60m2)
-
Mức giá ưu đãi ra mắt: 2.136.000.000 (Đã bao gồm đầy đủ nội thất)
-
Thời gian hoàn thiện: Năm 2026

Thông tin chi tiết
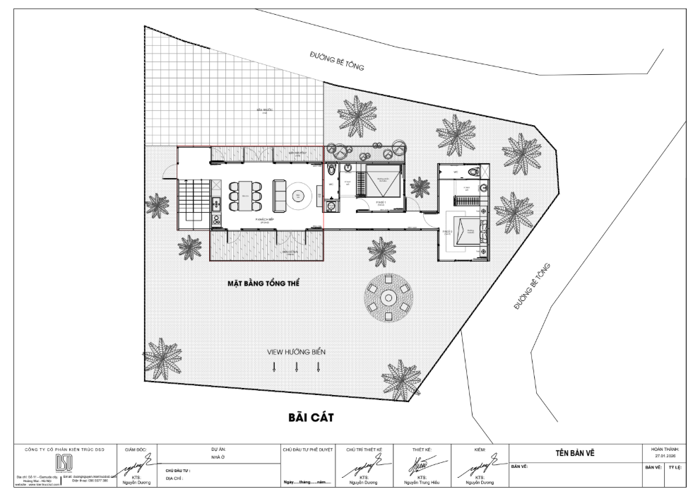
Công trình có tổng diện tích 178m², được thiết kế gồm 2 tầng với sự phân chia rõ ràng giữa không gian sinh hoạt chung và khu vực nghỉ ngơi riêng tư. Trong đó, tầng 1 có diện tích 117.8m² và tầng 2 là 60m², đảm bảo sự rộng rãi và tiện nghi cho toàn bộ không gian sống.
Công năng tổng thể bao gồm 4 phòng ngủ, 1 phòng khách kết hợp bếp, 5 nhà vệ sinh và hệ hiên mái đặc, đáp ứng đầy đủ nhu cầu sinh hoạt của gia đình từ 4–6 người.
Tầng 1 được thiết kế là không gian sinh hoạt chính với phòng khách kết hợp bếp rộng rãi, tạo sự kết nối liền mạch và thoáng đãng. Đây là khu vực trung tâm, nơi diễn ra các hoạt động sinh hoạt gia đình và tiếp khách.

Hai phòng ngủ tại tầng 1 được bố trí thuận tiện, phù hợp cho người lớn tuổi hoặc thành viên cần không gian riêng tại tầng trệt. Điểm đặc biệt là tầng 1 có đến 3 khu vệ sinh, giúp tối ưu sự tiện nghi, giảm thiểu tình trạng chờ đợi trong giờ cao điểm và nâng cao trải nghiệm sử dụng.
Tầng 2 là không gian nghỉ ngơi riêng tư với 2 phòng ngủ được thiết kế rộng rãi, thoáng mát. Mỗi phòng đều gần khu vệ sinh riêng, đảm bảo sự tiện lợi và thoải mái trong sinh hoạt hằng ngày. Việc bố trí thêm 2 WC tại tầng này giúp cân bằng công năng và đáp ứng tốt nhu cầu sử dụng của gia đình đông người.

Hệ hiên mái đặc được tích hợp trong thiết kế, đóng vai trò là không gian đệm giữa trong và ngoài, giúp tăng diện tích sử dụng và tạo nơi thư giãn lý tưởng.
Hệ vật liệu & kết cấu
Các vật liệu hoàn thiện được lựa chọn theo tiêu chuẩn cao cấp, vừa đảm bảo tính thẩm mỹ vừa nâng cao độ bền trong quá trình sử dụng lâu dài. Hệ cửa và các chi tiết nội thất được thiết kế hiện đại, tối ưu ánh sáng và thông gió tự nhiên.
- Hệ thống khung chịu lực thép G550 dày 0.75mm-1mm chống rỉ sét, kháng nhiễm mặn ven biển.
- Tấm tôn panel phủ bóng nhám mờ 0.4mm sơn tĩnh điện + chống nóng phun foam 5-6cm
- Hệ thống tường là tấm cemboard vĩnh tường dày 8mm, sơn màu chỉ định, nẹp T giáp ranh module.
- Hệ thống trần nhà: trần nhựa lam song
- Sàn nhà: Sàn spc 6mm chống ẩm, cemboard 12mm lót sàn, tôn bịt đáy, lót xốp chống ồn.
- Hiên: trần nhựa lam song, sàn gỗ nhựa 3D
- Cầu thang: Thép I 100×200 lan can thép hộp 25×25, tay vịn thép hộp 50×50, sơn hoàn thiện 2 thành phấn
- Sàn WC: Sàn gạch ốp lát 1mx1m dầy 8mm
- Hệ thống móng kim cương và dầm thép I đỡ nhà: Móng kim cương kt 35x30cm 4 lỗ chéo, đóng cọc phi thép 42mm, dài 1m . Hệ thép I chịu lực 150, liên kết với móng bằng bulong.
- Hệ thống cửa đi nhôm kính: – Nhôm xingfa Việt Nam dày 1,2mm-1,4mm; Kính an toàn 2 lớp 6.38mm; Cửa WC cửa trượt kính dán an toàn màu trắng sữa.
- Hệ thống kính cường lực: Kính cường lực dày 8 mm vách module
- Khóa cửa chính: khóa điện tử vân tay, mã số, thẻ từ.
Ưu điểm vượt trội
Nhà lắp ghép 178m² không chỉ phù hợp để ở mà còn là lựa chọn lý tưởng cho các mô hình kinh doanh lưu trú như homestay, villa nghỉ dưỡng hoặc resort mini. Với bố trí 4 phòng ngủ và 5 nhà vệ sinh, công trình đáp ứng tốt nhu cầu phục vụ nhiều nhóm khách cùng lúc, đảm bảo sự riêng tư và tiện nghi – yếu tố quan trọng trong trải nghiệm lưu trú cao cấp.

Thiết kế 2 tầng giúp phân tách không gian rõ ràng, dễ dàng vận hành theo mô hình kinh doanh. Tầng 1 có thể tận dụng làm khu vực sinh hoạt chung, tiếp khách và dịch vụ, trong khi tầng 2 là không gian nghỉ ngơi yên tĩnh, nâng cao trải nghiệm cho khách lưu trú.
Không gian rộng rãi cùng hệ hiên mái đặc tạo điều kiện lý tưởng để phát triển các tiện ích đi kèm như khu BBQ, café ngoài trời hoặc khu thư giãn, góp phần gia tăng giá trị khai thác và khả năng thu hút khách hàng.
>> Xem thêm các dự án khác của DSDhome tại đây.
DSDhome – Đơn Vị Thi Công Nhà Lắp Ghép Uy Tín, Chất Lượng
Để kiến tạo một công trình lắp ghép đạt đến chuẩn mực cao về thẩm mỹ, công năng và giá trị lâu dài, việc lựa chọn đơn vị thi công không chỉ là quyết định kỹ thuật mà còn là lựa chọn về tầm nhìn. DSDhome theo đuổi triết lý phát triển không gian sống như một “tác phẩm kiến trúc tinh gọn” – nơi mỗi chi tiết đều được tính toán, mỗi vật liệu đều có lý do tồn tại và mỗi giải pháp đều hướng đến trải nghiệm trọn vẹn.
Không dừng lại ở việc xây dựng, DSDhome tập trung vào việc kiến tạo giá trị sống thông qua sự kết hợp giữa thiết kế đương đại, công nghệ lắp ghép tiên tiến và quy trình thi công chuẩn hóa. Mỗi công trình là một tổng thể hài hòa giữa thẩm mỹ, hiệu suất sử dụng và độ bền theo thời gian, mang đến cho khách hàng không chỉ một không gian ở, mà là một chuẩn mực sống khác biệt – tinh tế, bền vững và mang dấu ấn riêng.
———-
Công ty Cổ phần Đầu tư DSD Group
Trụ sở: Số 11, Gamuda Leparc Yên Sở, Hoàng Mai, Hà Nội
Tổ hợp ăn mẫu và khu nghỉ dưỡng trải nghiệm phía Bắc: TT Thịnh Long, Hải Hậu, Nam Định
Chi nhánh miền Nam: 256 Độc Lập, Phú Hà, Phú Mỹ, TP. Hồ Chí Minh
Hotline: 096.124.9008
Website: https://dsdhome.vn
Fanpage: https://www.facebook.com/nhalapghepdsdhome
Youtube: https://www.youtube.com/@DSDhome







