NHÀ LẮP GHÉP 39M2 – GIẢI PHÁP NHÀ Ở TỐI ƯU CHO KHÔNG GIAN NHỎ
Tổng quan
Mẫu nhà lắp ghép 39m2 được thiết kế dành cho các khu đất có chiều ngang hạn chế, đặc biệt phù hợp với mô hình nhà phố nhỏ, nhà vườn hoặc công trình nghỉ dưỡng quy mô mini. Với tư duy thiết kế tối ưu hóa không gian, công trình vẫn đảm bảo đầy đủ công năng sinh hoạt trong một diện tích gọn gàng.
Điểm đặc biệt của dự án nằm ở cách tổ chức mặt bằng theo chiều dọc, giúp tận dụng tối đa diện tích sử dụng mà vẫn giữ được sự thông thoáng và tiện nghi.

Thông tin sản phẩm
-
Đơn vị thiết kế và thi công: Công ty Cổ phần Kiến trúc DSD
-
Tên sản phẩm: Nhà lắp ghép 39m2
-
Diện tích: 39m2
-
Công năng: 1 phòng khách bếp, 1 phòng ngủ, 1 phòng vệ sinh, hiên có mái
-
Mức giá ưu đãi ra mắt: 519 triệu đồng (Đã bao gồm đầy đủ nội thất)
-
Thời gian hoàn thiện: Năm 2026
Giới thiệu khái quát

Thông tin chi tiết dự án
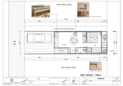
Nhà lắp ghép 39m2 được thiết kế tối ưu từng mét vuông sử dụng, công trình được bố trí theo dạng nhà ống hiện đại, phân chia rõ ràng theo trục chiều sâu, theo nguyên lý linear layout giúp tối ưu hóa luồng di chuyển và hạn chế được không gian chết.
- Khu vực phía trước: Có sân để xe rộng rãi (5.5m chiều sâu), sử dụng để làm chỗ đậu ô tô hoặc không gian sinh hoạt ngoài trời.
- Khu vực trung tâm: Phòng khách kết hợp bếp, bàn ăn được bố trí trung tâm, liên kết trực tiếp với khu bếp. Thiết kế mở giúp tăng cảm giác rộng rãi và tối ưu lưu thông bầu không khí.
- Khu vực phía sau: Thiết kế có 01 phòng ngủ riêng biệt; 01 nhà vệ sinh khép kín; khu giặt phơi bố trí cuối nhà, đảm bảo sạch sẽ, riêng tư.

Thiết kế công trình được tổ chức theo tư duy kiến trúc hiện đại, đảm bảo sự phân khu chức năng rõ ràng khi không gian sinh hoạt chung đặt ở trung tâm, còn khu nghỉ ngơi và vệ sinh bố trí phía sau nhằm tăng tính riêng tư. Với chiều dài khoảng 15.5m, mặt bằng tận dụng hiệu quả dạng đất ống, đồng thời bố trí khoảng mở ở hai đầu giúp tăng cường thông gió tự nhiên. Việc kết hợp phòng khách và bếp theo không gian mở cũng góp phần mở rộng cảm giác diện tích và nâng cao sự kết nối trong sinh hoạt hàng ngày.



Ưu điểm vượt trội
Công trình sử dụng hệ khung thép G550 mạ kẽm cường độ cao, đóng vai trò là kết cấu chịu lực chính bao gồm cột, dầm và xà gồ. Nhờ đặc tính thép cường độ cao, toàn bộ hệ khung vừa đảm bảo độ bền vững vừa giúp giảm tải trọng tổng thể công trình so với bê tông truyền thống.
Hệ tường được hoàn thiện bằng panel cách nhiệt hoặc tấm xi măng nhẹ, giúp tăng khả năng cách âm, cách nhiệt. Phần mái sử dụng tôn cách nhiệt hoặc panel PU, giúp giảm hấp thụ nhiệt, chống nóng hiệu quả. Sàn nhà được thi công bằng tấm chịu lực chuyên dụng, đảm bảo độ cứng và khả năng chịu tải trong quá trình sử dụng.
Nhờ áp dụng đồng bộ các giải pháp kết cấu và vật liệu, công trình mang lại nhiều lợi ích nổi bật như thi công nhanh, độ chính xác cao, hạn chế cong vênh và không bị ảnh hưởng bởi mối mọt. Đây là yếu tố quan trọng giúp tăng tuổi thọ và giảm chi phí bảo trì trong quá trình sử dụng.
Hiệu quả đầu tư – Chi phí hợp lý, giá trị lâu dài
Với mức chi phí khoảng 519 triệu đồng, mẫu nhà này giúp tối ưu ngân sách đáng kể so với xây dựng truyền thống, đồng thời rút ngắn thời gian hoàn thiện để nhanh chóng đưa vào sử dụng hoặc khai thác kinh doanh.
Tổng kết
Nhà lắp ghép 39m2 là minh chứng cho xu hướng xây dựng thông minh: diện tích nhỏ nhưng công năng không hề hạn chế. Với thiết kế khoa học, kết cấu bền vững và chi phí hợp lý, đây là giải pháp phù hợp cho cả nhu cầu ở thực tế và đầu tư lâu dài.
>> Xem thêm các dự án khác của DSDhome tại đây.
DSDhome – Đơn Vị Thi Công Nhà Lắp Ghép Uy Tín, Chất Lượng
Để sở hữu một ngôi nhà lắp ghép đáp ứng cả về thẩm mỹ lẫn công năng, việc lựa chọn đơn vị thi công uy tín và giàu kinh nghiệm là yếu tố then chốt. DSDhome mang đến những giải pháp nhà lắp ghép hiện đại, phù hợp cho nhiều mục đích như nhà ở, homestay, khu nghỉ dưỡng hay second home. Các công trình được phát triển theo hướng tối ưu vật liệu, rút ngắn thời gian thi công nhưng vẫn đảm bảo tiện nghi, tính thẩm mỹ và sự hài hòa với môi trường sống. Mỗi thiết kế của DSDhome đều hướng đến sự cân bằng giữa chất lượng, hiệu quả sử dụng và chi phí hợp lý, giúp khách hàng dễ dàng hiện thực hóa không gian sống như mong muốn.
———-
Công ty Cổ phần Đầu tư DSD Group
Trụ sở: Số 11, Gamuda Leparc Yên Sở, Hoàng Mai, Hà Nội
Tổ hợp ăn mẫu và khu nghỉ dưỡng trải nghiệm phía Bắc: TT Thịnh Long, Hải Hậu, Nam Định
Chi nhánh miền Nam: 256 Độc Lập, Phú Hà, Phú Mỹ, TP. Hồ Chí Minh
Hotline: 096.124.9008
Website: https://dsdhome.vn
Fanpage: https://www.facebook.com/nhalapghepdsdhome
Youtube: https://www.youtube.com/@DSDhome










