Giới thiệu khái quát
Nhà lắp ghép KIDS CLUB 48m² là mô hình không gian giáo dục hiện đại, được thiết kế dành riêng cho các hoạt động học tập, đào tạo và phát triển kỹ năng cho trẻ em. Với quy mô nhỏ gọn nhưng tối ưu công năng, công trình mang đến môi trường học tập linh hoạt, an toàn và dễ dàng triển khai tại nhiều khu vực khác nhau.
Với mức giá khoảng 567.400.000 VNĐ/căn, đây là giải pháp tối ưu chi phí cho các trung tâm giáo dục, trường mầm non, khu vui chơi hoặc mô hình lớp học trải nghiệm.

Thông tin sản phẩm
-
Đơn vị thiết kế và thi công: Công ty Cổ phần Kiến trúc DSD
-
Tên sản phẩm: KIDS CLUB 48m2
-
Diện tích: 48m2
-
Công năng: 1 Phòng học, 1 Nhà vệ sinh, 1 kho
- Giá: 567.400.000 Vnd/ căn
-
Mức giá ưu đãi ra mắt: 567.4 triệu đồng (Đã bao gồm đầy đủ nội thất)
-
Thời gian hoàn thiện: Năm 2026

Thông tiên chi tiết
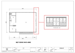
Không gian công năng của nhà lắp ghép KIDS CLUB 48m² được tổ chức theo hướng tối ưu cho hoạt động học tập và tương tác nhóm.
Khu vực phòng học chiếm phần lớn diện tích, được thiết kế theo dạng không gian mở, hạn chế vách ngăn để tạo sự thông thoáng và linh hoạt trong bố trí. Tại đây có thể dễ dàng sắp xếp bàn ghế theo nhiều mô hình khác nhau như học nhóm, học theo vòng tròn hoặc khu vực hoạt động sáng tạo, giúp nâng cao sự tương tác giữa giáo viên và học sinh.

Bên trong phòng học, các khu chức năng có thể được phân chia mềm bằng nội thất như kệ sách, tủ đồ hoặc thảm trải sàn, tạo thành các góc học tập, góc đọc sách hoặc khu vui chơi nhẹ cho trẻ. Thiết kế này giúp không gian luôn linh hoạt, dễ dàng thay đổi theo từng chương trình giảng dạy hoặc độ tuổi học sinh.
Khu vệ sinh được bố trí tách biệt, nằm ở vị trí thuận tiện nhưng không ảnh hưởng đến không gian học chính. Thiết kế đảm bảo tiêu chuẩn an toàn cho trẻ em với lối đi dễ tiếp cận, thiết bị phù hợp và dễ vệ sinh, giúp duy trì môi trường học tập sạch sẽ và thoải mái.
Kho lưu trữ được đặt gọn ở một phía của công trình, đóng vai trò lưu trữ dụng cụ học tập, đồ chơi, tài liệu giảng dạy hoặc thiết bị hỗ trợ. Nhờ có khu kho riêng, không gian lớp học luôn được giữ gọn gàng, tránh tình trạng bừa bộn, đồng thời giúp việc quản lý vật dụng trở nên dễ dàng hơn.
Vật liệu
Công trình sử dụng hệ khung thép mạ kẽm chắc chắn, kết hợp với các vật liệu hoàn thiện an toàn, thân thiện với môi trường và phù hợp với trẻ em. Hệ tường và mái có khả năng cách nhiệt, chống nóng, giúp không gian bên trong luôn thoáng mát và dễ chịu.

Sàn và nội thất được lựa chọn từ các vật liệu bền, dễ vệ sinh và hạn chế trơn trượt, đảm bảo an toàn trong quá trình sử dụng. Hệ thống điện được thiết kế khoa học, đáp ứng tiêu chuẩn an toàn cho môi trường giáo dục.
Ưu điểm vượt trội
Nhà lắp ghép KIDS CLUB 48m² nổi bật với khả năng thi công nhanh, giúp tiết kiệm thời gian triển khai so với xây dựng truyền thống. Thiết kế module linh hoạt cho phép dễ dàng mở rộng hoặc thay đổi công năng theo nhu cầu thực tế.

Bên cạnh đó, chi phí đầu tư hợp lý giúp các đơn vị giáo dục dễ dàng tiếp cận và nhân rộng mô hình. Không gian học tập hiện đại, thân thiện và sáng tạo cũng góp phần nâng cao trải nghiệm học tập cho trẻ.
Tổng kết
Nhà lắp ghép KIDS CLUB 48m² là giải pháp không gian giáo dục hiện đại, linh hoạt và tối ưu chi phí. Với thiết kế thông minh, vật liệu an toàn
và khả năng ứng dụng đa dạng, đây là lựa chọn phù hợp cho các đơn vị đang tìm kiếm mô hình lớp học nhanh chóng, hiệu quả và bền vững trong xu hướng giáo dục mới.
>> Xem thêm các dự án khác của DSDhome tại đây.
DSDhome – Đơn Vị Thi Công Nhà Lắp Ghép Uy Tín, Chất Lượng
Để sở hữu một ngôi nhà lắp ghép đáp ứng cả về thẩm mỹ lẫn công năng, việc lựa chọn đơn vị thi công uy tín và giàu kinh nghiệm là yếu tố then chốt. DSDhome mang đến những giải pháp nhà lắp ghép hiện đại, phù hợp cho nhiều mục đích như nhà ở, homestay, khu nghỉ dưỡng hay second home. Các công trình được phát triển theo hướng tối ưu vật liệu, rút ngắn thời gian thi công nhưng vẫn đảm bảo tiện nghi, tính thẩm mỹ và sự hài hòa với môi trường sống. Mỗi thiết kế của DSDhome đều hướng đến sự cân bằng giữa chất lượng, hiệu quả sử dụng và chi phí hợp lý, giúp khách hàng dễ dàng hiện thực hóa không gian sống như mong muốn.
———-
Công ty Cổ phần Đầu tư DSD Group
Trụ sở: Số 11, Gamuda Leparc Yên Sở, Hoàng Mai, Hà Nội
Tổ hợp ăn mẫu và khu nghỉ dưỡng trải nghiệm phía Bắc: TT Thịnh Long, Hải Hậu, Nam Định
Chi nhánh miền Nam: 256 Độc Lập, Phú Hà, Phú Mỹ, TP. Hồ Chí Minh
Hotline: 096.124.9008
Website: https://dsdhome.vn
Fanpage: https://www.facebook.com/nhalapghepdsdhome
Youtube: https://www.youtube.com/@DSDhome





