Giới thiệu khát quát
Mẫu nhà lắp ghép diện tích 155.9m² được phát triển theo định hướng không gian sống mở, kết hợp hài hòa giữa sinh hoạt gia đình và trải nghiệm nghỉ dưỡng. Tổng thể công trình được tổ chức theo dạng module trải dài, bao quanh một khoảng sân trong, giúp tăng cường sự kết nối giữa các khu chức năng và thiên nhiên.
Từ phối cảnh 3D có thể thấy rõ ngôn ngữ thiết kế hiện đại với các khối kiến trúc đơn giản, mái dốc nhẹ kết hợp hệ cửa kính lớn. Khoảng sân trung tâm đóng vai trò như “lá phổi” của ngôi nhà, vừa tạo điểm nhìn, vừa giúp điều hòa vi khí hậu, mang lại cảm giác thoáng đãng cho toàn bộ không gian bên trong.

Thông tin chung
-
Đơn vị thiết kế và thi công: Công ty Cổ phần Kiến trúc DSD
-
Tên sản phẩm: Nhà lắp ghép 155.9 m2
-
Diện tích: 155.9 m2
- Hệ mái: Hiên có mái che
-
Công năng: 1 phòng khách, 1 phòng bếp, 3 phòng ngủ, 2 nhà vệ sinh, 1 phòng tắm onsen
-
Mức giá ưu đãi ra mắt: 1.800.000.000 (Đã bao gồm đầy đủ nội thất)
-
Thời gian hoàn thiện: Năm 2026

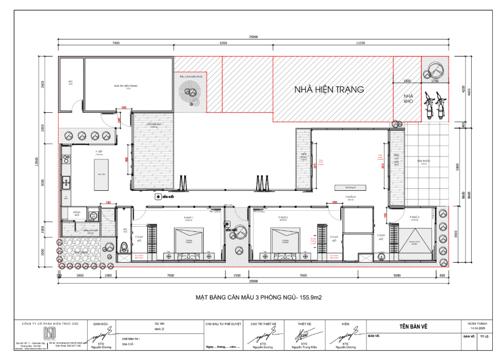
Mặt bằng công năng
Công trình được bố trí khoa học, đảm bảo đầy đủ tiện nghi cho gia đình nhiều thế hệ.
Không gian chính gồm 1 phòng khách và 1 phòng bếp được đặt ở vị trí trung tâm, thiết kế liên thông tạo sự rộng rãi và thuận tiện trong sinh hoạt hàng ngày. Từ khu vực này, các hướng nhìn đều mở ra sân trong hoặc hiên nhà, giúp không gian luôn tràn ngập ánh sáng tự nhiên.


Khu vực nghỉ ngơi bao gồm 3 phòng ngủ được bố trí tách biệt tương đối, đảm bảo sự riêng tư nhưng vẫn liên kết thuận tiện thông qua hành lang chung. Các phòng đều có cửa sổ hoặc cửa kính lớn, tối ưu thông gió và chiếu sáng tự nhiên.


Ngoài ra, công trình còn tích hợp 2 nhà vệ sinh và đặc biệt là 1 phòng tắm onsen – điểm nhấn mang tính nghỉ dưỡng, giúp gia chủ thư giãn ngay tại nhà. Không gian này được bố trí kín đáo, đảm bảo sự riêng tư và trải nghiệm cao cấp.

Phía trước và xung quanh nhà là hệ hiên có mái che, đóng vai trò như lớp đệm chuyển tiếp, vừa che nắng mưa vừa mở rộng không gian sinh hoạt ngoài trời.

Thiết kế không gian & trải nghiệm
Điểm nổi bật của công trình là cách tổ chức không gian xoay quanh sân trong, giúp mọi khu vực đều có sự kết nối trực tiếp với thiên nhiên. Đây là giải pháp thiết kế thường thấy trong các công trình nghỉ dưỡng, mang lại cảm giác thư giãn và cân bằng.

Hệ cửa kính lớn kết hợp vật liệu gỗ tạo nên sự tương phản hài hòa giữa hiện đại và ấm cúng. Không gian bên trong vì vậy luôn giữ được sự sáng sủa vào ban ngày và ấm áp vào buổi tối.
Vật liệu hoàn thiện
Theo bảng vật liệu đi kèm, công trình sử dụng các vật liệu hiện đại, bền và phù hợp với khí hậu:

Tường hoàn thiện màu ghi trung tính (3605-T), kết hợp với sàn SPC (SPC-P0002) giúp tăng độ bền và khả năng chống ẩm. Trần sử dụng nhựa NSP-12, nhẹ và dễ thi công.
Khu vực bếp và vệ sinh sử dụng vật liệu đá và gạch chuyên dụng như gạch WC M1109 matt mịn, tường WC Halimad-2415 đảm bảo chống trơn và dễ vệ sinh. Nội thất sử dụng gỗ mã 205T mang tone ấm, kết hợp cùng rèm vải TM18135-32 tạo cảm giác mềm mại cho không gian.
Ngoài ra, khu vực hiên sử dụng sàn gỗ ngoài trời màu nâu, vừa tăng tính thẩm mỹ vừa đảm bảo độ bền trong điều kiện thời tiết.
Tổng kết
Mẫu nhà lắp ghép 155.9m² là giải pháp lý tưởng cho những gia đình tìm kiếm một không gian sống rộng rãi, tiện nghi nhưng vẫn gần gũi thiên nhiên. Không chỉ đáp ứng nhu cầu ở, công trình còn mang lại trải nghiệm nghỉ dưỡng ngay trong chính ngôi nhà của mình.

>> Xem thêm các dự án khác của DSDhome tại đây.
DSDhome – Đơn Vị Thi Công Nhà Lắp Ghép Uy Tín, Chất Lượng
———-
Công ty Cổ phần Đầu tư DSD Group
Trụ sở: Số 11, Gamuda Leparc Yên Sở, Hoàng Mai, Hà Nội
Tổ hợp ăn mẫu và khu nghỉ dưỡng trải nghiệm phía Bắc: TT Thịnh Long, Hải Hậu, Nam Định
Chi nhánh miền Nam: 256 Độc Lập, Phú Hà, Phú Mỹ, TP. Hồ Chí Minh
Hotline: 096.124.9008
Website: https://dsdhome.vn
Fanpage: https://www.facebook.com/nhalapghepdsdhome
Youtube: https://www.youtube.com/@DSDhome





























