Giới thiệu khái quát
-
Đơn vị thiết kế và thi công: Công ty Cổ phần Kiến trúc DSD
-
Tên sản phẩm: Nhà lắp ghép 46.8m2
-
Diện tích: 46.8m2
- Hệ mái: Hiên không mái 4.8m2
-
Công năng: 2 phòng ngủ, 1 phòng vệ sinh, Lavabo + WC, Tủ đồ vệ sinh
(Cửa lưới chống côn trùng: 2 cửa sổ và 1 cửa chính)
-
Mức giá ưu đãi ra mắt: 553 triệu đồng (Đã bao gồm đầy đủ nội thất)
-
Thời gian hoàn thiện: Năm 2026

Thông tin chi tiết dự án
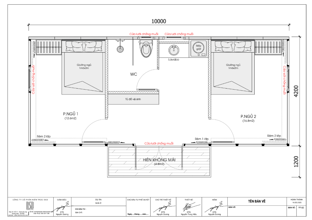
Nhà lắp ghép 46.8m² là mẫu nhà 1 tầng được thiết kế theo dạng hình chữ nhật với kích thước tổng thể 10m x 4.2m, phù hợp với nhiều loại hình đất khác nhau từ đô thị đến nghỉ dưỡng. Công trình có thêm khu vực hiên trước rộng khoảng 4.8m², đóng vai trò là không gian chuyển tiếp, giúp tăng tính kết nối giữa bên trong và thiên nhiên bên ngoài.

Mặt bằng công năng được tổ chức khoa học với 2 phòng ngủ bố trí đối xứng hai bên, tạo sự riêng tư và tối ưu diện tích sử dụng. Phòng ngủ 1 có diện tích 12.6m², phù hợp làm phòng ngủ chính, trong khi phòng ngủ 2 rộng hơn với 16.8m², có thể linh hoạt sử dụng cho gia đình hoặc khách lưu trú.

Khu vệ sinh được đặt ở trung tâm ngôi nhà, bao gồm khu WC riêng biệt và khu lavabo kết hợp giặt. Cách bố trí này giúp tối ưu hệ thống cấp thoát nước, giảm chi phí thi công và thuận tiện trong quá trình sử dụng, đặc biệt phù hợp với mô hình homestay hoặc nhà cho thuê.

Tất cả các phòng đều được thiết kế mở với cửa đi ra hiên và hệ cửa sổ bên hông, giúp tận dụng tối đa ánh sáng tự nhiên và thông gió chéo. Hệ cửa lùa chống muỗi kết hợp rèm 1 lớp và 2 lớp giúp tăng tính linh hoạt trong việc điều chỉnh ánh sáng và đảm bảo sự riêng tư.
Tổng thể thiết kế hướng đến sự tối giản nhưng hiệu quả, không có diện tích dư thừa, tối ưu hoàn toàn cho nhu cầu ở thực tế. Nhờ đó, công trình không chỉ phù hợp cho gia đình nhỏ từ 2–4 người mà còn là lựa chọn lý tưởng để khai thác kinh doanh homestay, bungalow hoặc second home nghỉ dưỡng.
Vật liệu
ông trình sử dụng hệ khung thép mạ kẽm cường độ cao, đảm bảo khả năng chịu lực và độ bền lâu dài. Tường được cấu tạo từ các tấm panel cách nhiệt như EPS hoặc vật liệu tương đương, giúp chống nóng, cách âm hiệu quả và phù hợp với khí hậu Việt Nam.

Sàn sử dụng tấm Cemboard chịu lực tốt, chống ẩm và có độ bền cao, trong khi mái được thiết kế với lớp vật liệu chống nóng, giảm hấp thụ nhiệt, mang lại không gian sống thoải mái quanh năm.
Ưu điểm vượt trội
Nhà lắp ghép 46.8m² sở hữu nhiều ưu điểm vượt trội so với phương pháp xây dựng truyền thống, nổi bật nhất là thời gian thi công nhanh chóng, chỉ trong khoảng vài tuần là có thể hoàn thiện và đưa vào sử dụng. Nhờ ứng dụng công nghệ lắp ghép module và sản xuất sẵn tại nhà máy, công trình đảm bảo độ chính xác cao, hạn chế sai sót và giảm thiểu chi phí phát sinh.
Bên cạnh đó, hệ vật liệu nhẹ giúp giảm tải trọng móng, phù hợp với nhiều nền đất khác nhau, đặc biệt là khu vực ven đô, đồi núi hoặc đất yếu.
Không chỉ tối ưu về chi phí và thời gian, sản phẩm còn mang lại hiệu quả lâu dài nhờ khả năng cách nhiệt, cách âm tốt và độ bền cao theo thời gian. Thiết kế linh hoạt cho phép dễ dàng mở rộng, nâng cấp hoặc di dời khi cần thiết, giúp gia chủ chủ động hơn trong kế hoạch sử dụng
Tổng kết
Nhà lắp ghép 46.8m² là giải pháp nhà ở thông minh, đáp ứng đầy đủ các tiêu chí về thẩm mỹ, công năng và chi phí. Với thiết kế tối ưu, vật liệu bền vững và khả năng ứng dụng đa dạng, sản phẩm không chỉ phù hợp cho nhu cầu an cư mà còn là lựa chọn tiềm năng cho các nhà đầu tư trong lĩnh vực lưu trú và nghỉ dưỡng. Đây chính là xu hướng nhà ở hiện đại, linh hoạt và bền vững trong tương lai.
>> Xem thêm các dự án khác của DSDhome tại đây.
DSDhome – Đơn Vị Thi Công Nhà Lắp Ghép Uy Tín, Chất Lượng
Để sở hữu một ngôi nhà lắp ghép đáp ứng cả về thẩm mỹ lẫn công năng, việc lựa chọn đơn vị thi công uy tín và giàu kinh nghiệm là yếu tố then chốt. DSDhome mang đến những giải pháp nhà lắp ghép hiện đại, phù hợp cho nhiều mục đích như nhà ở, homestay, khu nghỉ dưỡng hay second home. Các công trình được phát triển theo hướng tối ưu vật liệu, rút ngắn thời gian thi công nhưng vẫn đảm bảo tiện nghi, tính thẩm mỹ và sự hài hòa với môi trường sống. Mỗi thiết kế của DSDhome đều hướng đến sự cân bằng giữa chất lượng, hiệu quả sử dụng và chi phí hợp lý, giúp khách hàng dễ dàng hiện thực hóa không gian sống như mong muốn.
———-
Công ty Cổ phần Đầu tư DSD Group
Trụ sở: Số 11, Gamuda Leparc Yên Sở, Hoàng Mai, Hà Nội
Tổ hợp ăn mẫu và khu nghỉ dưỡng trải nghiệm phía Bắc: TT Thịnh Long, Hải Hậu, Nam Định
Chi nhánh miền Nam: 256 Độc Lập, Phú Hà, Phú Mỹ, TP. Hồ Chí Minh
Hotline: 096.124.9008
Website: https://dsdhome.vn
Fanpage: https://www.facebook.com/nhalapghepdsdhome
Youtube: https://www.youtube.com/@DSDhome










