Giới thiệu khái quát

Nhà lắp ghép 43.8m² là mẫu nhà 1 tầng được thiết kế theo phong cách hiện đại, tối giản, phù hợp với nhu cầu ở thực tế của gia đình nhỏ hoặc khai thác kinh doanh homestay. Với diện tích gọn gàng nhưng bố trí hợp lý, công trình mang đến không gian sống tiện nghi, đầy đủ công năng và tối ưu chi phí đầu tư.
Thông tin sản phẩm
-
Đơn vị thiết kế và thi công: Công ty Cổ phần Kiến trúc DSD
-
Tên sản phẩm: Nhà lắp ghép 43.8m2
-
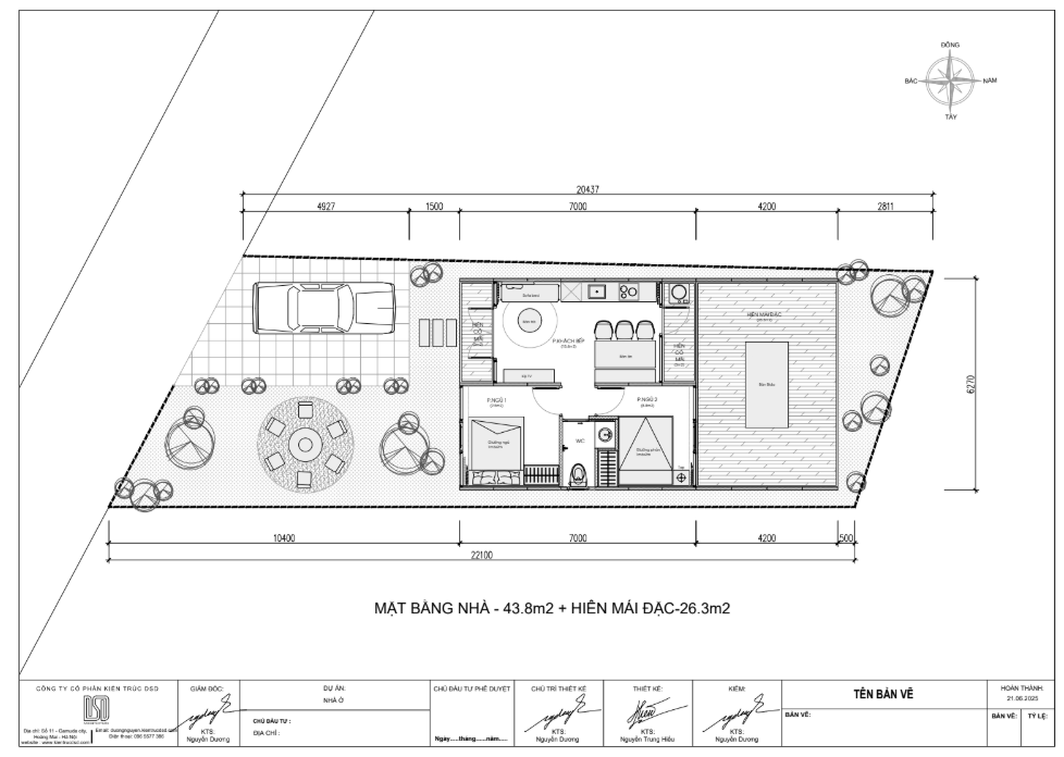
Diện tích: 43.8m2
- Hệ mái: Hiên bàn bida mái đặc 26.3 m2, trần nhựa lam song
-
Công năng: 1 phòng khách bếp, 2 phòng ngủ, 1 phòng vệ sinh
-
Mức giá ưu đãi ra mắt: 726.350.000 triệu đồng (Đã bao gồm đầy đủ nội thất)
-
Thời gian hoàn thiện: Năm 2026

Thông tin chi tiết
Công trình có tổng diện tích xây dựng 43.8m², được thiết kế với 2 phòng ngủ riêng biệt, 1 phòng khách kết hợp bếp và 1 khu vệ sinh. Ngoài ra, nhà còn sở hữu khu hiên mái đặc rộng rãi, tăng diện tích sử dụng và tạo không gian sinh hoạt ngoài trời thoải mái.


Phòng ngủ 1 có diện tích 9.5m², phù hợp làm phòng ngủ chính, trong khi phòng ngủ 2 rộng 8.8m², có thể sử dụng cho thành viên khác trong gia đình hoặc khách lưu trú. Các không gian được bố trí khoa học, đảm bảo sự riêng tư nhưng vẫn thuận tiện trong sinh hoạt.

Không gian phòng khách được thiết kế mở, liên thông với khu vực bếp, giúp tối ưu diện tích và tạo cảm giác rộng rãi. Nội thất cơ bản bao gồm sofa, bàn trà và kệ tivi, đáp ứng đầy đủ nhu cầu sinh hoạt và tiếp khách.

Khu bếp được bố trí gọn gàng, thuận tiện cho việc nấu nướng hằng ngày. Nhà vệ sinh được đặt ở vị trí hợp lý, đảm bảo dễ tiếp cận từ các khu vực trong nhà mà vẫn giữ được sự riêng tư.
Điểm nổi bật của mẫu nhà này là khu hiên mái đặc kết hợp bàn bida với diện tích lên đến 26.3m². Khu vực này được hoàn thiện với mái tôn, trần nhựa lam sóng và hệ thống điện đầy đủ, tạo thành không gian giải trí và thư giãn lý tưởng.

Hiên rộng không chỉ giúp tăng diện tích sử dụng mà còn nâng cao trải nghiệm sống, phù hợp cho các hoạt động ngoài trời như tiếp khách, nghỉ ngơi hoặc kinh doanh dịch vụ giải trí.
Vật liệu

Khung thép G550 – xương sống của công trình: Toàn bộ nhà lắp ghép 43.8m² sử dụng hệ khung thép cường độ cao G550 làm kết cấu chính. Đây là loại thép mạ kẽm có độ bền cao, chống ăn mòn tốt và chịu lực vượt trội, đóng vai trò như “xương sống” giúp công trình ổn định, bền vững theo thời gian.
- Tường (màu ghi 3605-D): Hệ tường sử dụng vật liệu hoàn thiện màu ghi trung tính, mang lại cảm giác hiện đại, sạch sẽ và dễ phối hợp với các chi tiết nội thất. Tông màu này giúp không gian trông tinh gọn và phù hợp với phong cách tối giản.
- Sàn (SPC-P0037): Sàn sử dụng vật liệu SPC với bề mặt vân gỗ, vừa đảm bảo tính thẩm mỹ vừa có độ bền cao, chống nước và dễ vệ sinh.
- Trần (NSP-08): Trần được hoàn thiện bằng vật liệu nhẹ, đồng bộ với tổng thể thiết kế. Bề mặt trần mang sắc độ ấm
- Gỗ sàn hiên (màu nâu): Khu vực hiên sử dụng gỗ màu nâu tự nhiên, tạo sự chuyển tiếp mềm mại giữa không gian trong nhà và ngoài trời
- Rèm vải (1605-24): Rèm vải với tông màu trung tính giúp điều tiết ánh sáng hiệu quả, đồng thời tạo điểm nhấn nhẹ nhàng cho không gian nội thất
- Nẹp T (màu đen): Nẹp hoàn thiện màu đen được sử dụng để xử lý các điểm nối vật liệu, vừa đảm bảo kỹ thuật vừa tạo đường nét sắc sảo
- Mặt lavabo (màu ghi): Bề mặt lavabo sử dụng vật liệu màu ghi đồng bộ với tường, mang lại sự thống nhất về màu sắc
- Gỗ nội thất (330 EV): Nội thất sử dụng gỗ công nghiệp với vân và màu sắc ấm áp, mang lại sự đồng bộ với sàn và trần.
- Tường WC (Halimad-2414): Tường khu vệ sinh sử dụng vật liệu chuyên dụng có khả năng chống ẩm tốt, đảm bảo độ bền và hạn chế nấm mốc trong môi trường ẩm ướt.
Ưu điểm vượt trội
Mẫu nhà lắp ghép 43.8m² nổi bật với thiết kế nhỏ gọn nhưng đầy đủ tiện nghi, phù hợp với nhiều mục đích sử dụng khác nhau. Thời gian thi công nhanh, chi phí hợp lý và khả năng linh hoạt trong mở rộng giúp công trình trở thành lựa chọn tối ưu cho nhiều khách hàng.
Đặc biệt, khu hiên kết hợp bàn bida là điểm nhấn khác biệt, vừa nâng cao trải nghiệm sống, vừa có thể khai thác kinh doanh hiệu quả trong mô hình homestay hoặc dịch vụ giải trí.

Tổng kết
Nhà lắp ghép 43.8m² là giải pháp nhà ở thông minh, kết hợp hài hòa giữa công năng, thẩm mỹ và chi phí. Với thiết kế linh hoạt, không gian tiện nghi và nhiều tiện ích đi kèm, đây là lựa chọn phù hợp cho gia đình nhỏ, người trẻ hoặc nhà đầu tư đang tìm kiếm mô hình nhà ở – nghỉ dưỡng hiệu quả và bền vững.
>> Xem thêm các dự án khác của DSDhome tại đây.
DSDhome – Đơn Vị Thi Công Nhà Lắp Ghép Uy Tín, Chất Lượng
———-
Công ty Cổ phần Đầu tư DSD Group
Trụ sở: Số 11, Gamuda Leparc Yên Sở, Hoàng Mai, Hà Nội
Tổ hợp ăn mẫu và khu nghỉ dưỡng trải nghiệm phía Bắc: TT Thịnh Long, Hải Hậu, Nam Định
Chi nhánh miền Nam: 256 Độc Lập, Phú Hà, Phú Mỹ, TP. Hồ Chí Minh
Hotline: 096.124.9008
Website: https://dsdhome.vn
Fanpage: https://www.facebook.com/nhalapghepdsdhome
Youtube: https://www.youtube.com/@DSDhome



























