Thông tin chung về nhà lắp ghép 4 phòng ngủ
Nhà lắp ghép 4 phòng ngủ được thiết kế theo mô-đun với kết cấu khung thép mạ kẽm tiêu chuẩn, kết hợp cùng các vật liệu hoàn thiện nhẹ như panel EPS, gỗ kỹ thuật và kính cường lực. Việc sử dụng hệ khung nhẹ nhưng có khả năng chịu lực cao giúp giảm tải trọng nền móng, đồng thời cho phép thi công trên nhiều loại địa hình mà không yêu cầu xử lý nền phức tạp. Tất cả các thành phần như tường, sàn, mái được gắn kết bằng hệ liên kết cơ khí hoặc lắp ráp module, đảm bảo khả năng tháo lắp, mở rộng và thay thế trong tương lai.

Phối cảnh tổng thể một ngôi nhà lắp ghép 4 phòng ngủ thiết kế theo mô-đun hiện đại
Với yêu cầu công năng 4 phòng ngủ, không gian được bố trí linh hoạt theo nguyên tắc tối ưu hóa diện tích sử dụng mà vẫn đảm bảo thông gió và chiếu sáng tự nhiên. Nhà lắp ghép 4 phòng ngủ thường được triển khai theo dạng chữ L, chữ U hoặc bố cục đối xứng nhằm tận dụng tối đa mặt tiếp xúc với thiên nhiên.

Khung thép và vật liệu nhẹ giúp thi công nhanh, tiết kiệm chi phí
Ngoài ra, hệ cách âm – cách nhiệt bằng panel lõi PU hoặc bông khoáng giúp công trình đạt hiệu suất năng lượng cao, tiết kiệm điện năng và nâng cao chất lượng sống. Đây là giải pháp kiến trúc hiện đại, đáp ứng đầy đủ tiêu chuẩn về kỹ thuật, thẩm mỹ và công năng cho các gia đình nhiều thế hệ hoặc khách hàng có nhu cầu không gian sống đa dạng.
Ưu điểm của nhà lắp ghép 2 tầng 4 phòng ngủ
Phong cách hiện đại, thẩm mỹ cao
Ngôi nhà lắp ghép DSDhome không chỉ là nơi ở mà còn là tác phẩm nghệ thuật kiến trúc. Với thiết kế hiện đại, tinh tế, ngôi nhà của bạn sẽ trở nên nổi bật và thu hút mọi ánh nhìn. Không như những xưởng sản xuất tự phát thông thường, DSDhome xuất phát là một đơn vị thiết kế. Chính vì vậy vẻ đẹp tổng thể ngôi nhà luôn được đề cao và chú trọng. Các chi tiết từ nhỏ nhất như hệ thống dẫn điện, nước hay hệ nan che điều hòa cũng được hoàn thiện chỉn chu, nâng cao tính thẩm mỹ nhưng vẫn đảm bảo về mặt công năng sử dụng.
Hoàn thiện trọn gói, lắp đặt nhanh chóng 2-3 ngày
Tiết kiệm thời gian và công sức là ưu điểm nổi bật của nhà lắp ghép DSDhome.Quá trình thi công chỉ kéo dài trong khoảng 2 – 3 ngày tuỳ theo quy mô công trình. Sau khi lắp đặt, khách hàng hoàn toàn có thể dọn vào ở luôn bởi nhà lắp ghép tại DSDHome luôn đảm bảo trang bị đầy đủ những nội thất cần thiết của 1 căn nhà cơ bản.
Có thể thêm phòng, mở rộng diện tích, nâng tầng
Khả năng module hóa, bạn hoàn toàn có thể điều chỉnh và mở rộng không gian sống của mình. Nhà lắp ghép DSDhome được thiết kế với cấu trúc linh hoạt, cho phép bạn dễ dàng thêm phòng, nâng tầng hoặc mở rộng diện tích mà không cần phải xây dựng lại từ đầu.
Di chuyển linh hoạt, lắp đặt trên mọi địa hình
Với khả năng module hoá căn nhà, đơn vị thi công DSDHome có thể dễ dàng di chuyển các vật liệu, cấu kiện qua các vùng núi, vùng xa xôi. Nhà lắp ghép DSDhome sẽ đáp ứng mọi yêu cầu của bạn.Ngoài ra, với khả năng di chuyển linh hoạt, ngôi nhà của bạn có thể dễ dàng di chuyển sang vị trí mới và lắp đặt trên mọi địa hình, từ vùng nông thôn đến thành thị mà không tốn quá nhiều chi phí tháo dỡ và xây mới như .
Khấu hao tài sản thấp, có thể thanh lý nhà với giá trị cao
Được chế tạo từ các vật liệu cao cấp, có khả năng chống mối mọt, chịu nhiệt và cách âm tốt, nhà lắp ghép DSDhome đảm bảo độ bền vững và tuổi thọ cao. Kết cấu vững chắc, chịu được động đất và các điều kiện thời tiết khắc nghiệt, giúp ngôi nhà luôn bền đẹp với thời gian. Cấu trúc module linh hoạt, việc sửa chữa, bảo dưỡng trở nên dễ dàng hơn, giúp ngôi nhà luôn như mới. Đây là một khoản đầu tư thông minh và bền vững cho tương lai.
Thủ tục pháp lý đơn giản
Với nhà lắp ghép DSDhome, quy trình xin giấy phép xây dựng diễn ra nhanh chóng và đơn giản hơn so với nhà xây truyền thống. Thay vì phải trải qua nhiều khâu thủ tục phức tạp, bạn chỉ cần đáp ứng một số yêu cầu cơ bản về an toàn và quy hoạch. Điều này giúp bạn tiết kiệm thời gian và công sức đáng kể.
Cách thiết kế nhà lắp ghép 4 phòng ngủ hợp lý
Khi xây dựng và bố trí nhà lắp ráp 4 phòng ngủ, bạn tham khảo các yếu tố và xem xét các điểm sau:
Xác định diện tích cần thiết
Để thiết kế một ngôi nhà lắp ghép 4 phòng ngủ đạt hiệu quả sử dụng cao, việc xác định diện tích xây dựng là bước đầu tiên quan trọng. Thông thường, diện tích tối thiểu để bố trí 4 phòng ngủ riêng biệt là từ 80–90m², tuy nhiên để đảm bảo không gian sống rộng rãi, thoải mái và đầy đủ tiện nghi, diện tích lý tưởng nên từ 120m² trở lên. Việc chọn diện tích quá nhỏ sẽ khiến việc phân bổ các phòng chức năng trở nên gò bó, ảnh hưởng đến tiện nghi sinh hoạt và khả năng thông gió, chiếu sáng tự nhiên.

Mặt bằng nhà lắp ghép 4 phòng ngủ tối ưu công năng sử dụng
Nhà cấp 4: Thường cần tối thiểu 120–150 m² để bố trí 4 phòng ngủ mà không tạo cảm giác chật chội. Ví dụ một mẫu cấp 4 diện tích 170 m² có 4 phòng ngủ vẫn thoáng đãng
Bungalow (một tầng hiện đại): Diện tích đa dạng từ 150–232 m² để đủ không gian cho 4 phòng ngủ, phòng khách, bếp, sân vườn. Một thiết kế bungalow 232 m² đáp ứng nhu cầu này tốt .
Nhà 2 tầng: Có thể rút gọn diện tích mỗi tầng (ví dụ 80–100 m²/tầng), tổng khoảng 160–200 m² sẽ hợp lý để sắp xếp các phòng chức năng khoa học, thuận tiện.
Biệt thự (hạng trung): Thông thường từ 200–300 m², đảm bảo không chỉ 4 phòng ngủ rộng rãi mà còn bố trí thêm phòng làm việc, phòng thờ, tầng hầm (nếu có).
Nhà ống/nhà phố: Diện tích mỗi chiều chỉ có thể khoảng 60–80 m²/tầng, để đủ 4 phòng ngủ cần xây khoảng 2–3 tầng, tổng diện tích tích lũy đạt từ 180–240 m².
Lên thiết kế bố trí 4 phòng ngủ hợp lý
- Phân bổ diện tích phòng ngủ

Bố cục không gian hài hòa giữa phòng ngủ, khách, bếp và vệ sinh
- Phòng chính (Master): 20–25 m², có thể tích hợp WC, tạo sự thoải mái cho chủ nhân .
- Phòng ngủ phụ: 12–16 m², đủ cho giường đôi, tủ quần áo, và lối đi thông thoáng
- Phòng nhỏ (cho trẻ em hoặc dự phòng): 10–12 m², nếu tối giản vẫn đáp ứng được nhu cầu cơ bản.
- Bố cục không gian chung

Không gian mở, bố trí hợp lý giữa các phòng chức năng
- Nhà tầng hoặc bungalow nên bố trí phòng khách, bếp và ăn ở tầng trệt, liên kết mở để tạo cảm giác rộng hơn.
- Phòng ngủ nên bố trí đều các phía (tránh tập trung một phía), có hành lang nhỏ hoặc lô gia giúp lấy gió, ánh sáng tự nhiên.
- Nhà 2–3 tầng cần cân nhắc cầu thang, khu vực sinh hoạt chung ở tầng trên (phòng sinh hoạt, làm việc), giúp tách riêng các khu vực riêng tư lẫn công cộng.
- Áp dụng vật liệu lắp ghép tiện lợi

Mặt bằng tổ chức không gian chức năng khoa học
- Dù là panel hay module, phòng ngủ nên thiết kế theo module tiêu chuẩn (chiều rộng 3–4 m, dài 4–5 m) để linh hoạt trong việc hoán đổi, nâng cấp.
- Các khu vực WC, hành lang kỹ thuật cũng cần được lập mô-đun sẵn, giúp rút ngắn thời gian thi công và dễ bảo trì.
- Điều chỉnh không gian theo loại nhà

Cấu trúc mô-đun giúp phân tách không gian hợp lý
- Nhà cấp 4 và bungalow: ưu tiên một mặt bằng thông thoáng, hành lang nhỏ, phòng ngủ trải đều để tạo kết nối trực tiếp với sân vườn.
- Biệt thự: có thể bố trí tầng áp mái hoặc gác lửng làm phòng làm việc, tăng diện tích sử dụng mà vẫn nằm trong tổng tích.
- Nhà ống: cần tối ưu cầu thang giữa nhà, phòng ngủ nên đặt hai bên mỗi tầng, tối đa ánh sáng tự nhiên từ mặt trước và cuối nhà.
Sau khi xác định diện tích, kiến trúc sư cần lên phương án mặt bằng tổng thể với bố cục rõ ràng giữa 4 phòng ngủ và các không gian phụ trợ như phòng khách, bếp, phòng ăn, nhà vệ sinh. Trong thiết kế nhà lắp ghép 4 phòng ngủ, việc phân chia không gian cần chú trọng đến tính riêng tư và lưu thông hợp lý giữa các khu vực.

Thiết kế nhà lắp ghép module thông minh, tiết kiệm chi phí
Các phòng nên được bố trí xen kẽ với các mảng sân vườn, hành lang hoặc logia để tạo cảm giác thoáng đãng và tránh hiệu ứng “nhà hộp”. Đồng thời, lựa chọn hệ panel cách nhiệt (PU, EPS, rockwool) phù hợp với khí hậu địa phương sẽ góp phần nâng cao hiệu suất sử dụng năng lượng và tuổi thọ công trình. Đây là cách tiếp cận vừa đảm bảo tính linh hoạt vốn có của nhà lắp ghép, vừa đáp ứng các tiêu chuẩn khắt khe về công năng và thẩm mỹ trong thiết kế nhà ở hiện đại.
Các mẫu nhà lắp ghép tầng 4 phòng ngủ đẹp, sang trọng
Nhà 1 tầng 4 phòng ngủ lắp ghép

Phối cảnh nhà 1 tầng lắp ghép 4 phòng ngủ hiện đại, hài hòa thiên nhiên
Thiết kế nhà 1 tầng lắp ghép 4 phòng ngủ trải rộng theo chiều ngang, tạo không gian thoáng đãng và gần gũi thiên nhiên. Kiểu nhà phù hợp gia đình nhiều thế hệ, dễ thi công trên mọi loại địa hình.

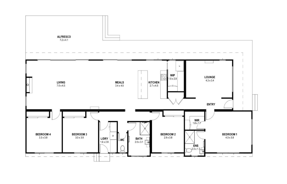
Mặt bằng bố trí 4 phòng ngủ rộng rãi, thông thoáng theo chiều ngang
Các phòng ngủ được bố trí tách biệt hai cánh nhà, đón sáng từ ba hướng. Phòng khách và bếp ở trung tâm, thông gió chéo hiệu quả. Sảnh hiên rộng rãi giúp kết nối với sân vườn bên ngoài.
Xem thêm các thiết kế nhà 1 tầng 4 phòng ngủ lắp ghép tại đây
Nhà 2 tầng 4 phòng ngủ lắp ghép

Phối cảnh nhà lắp ghép 2 tầng với thiết kế hiện đại, tiết kiệm diện tích đất
Mẫu nhà lắp ghép 2 tầng 4 phòng ngủ giúp mở rộng không gian sống trên diện tích nhỏ. Thiết kế phân tầng linh hoạt, tối ưu không gian sử dụng cho gia đình đông người, có trẻ nhỏ hoặc người già.

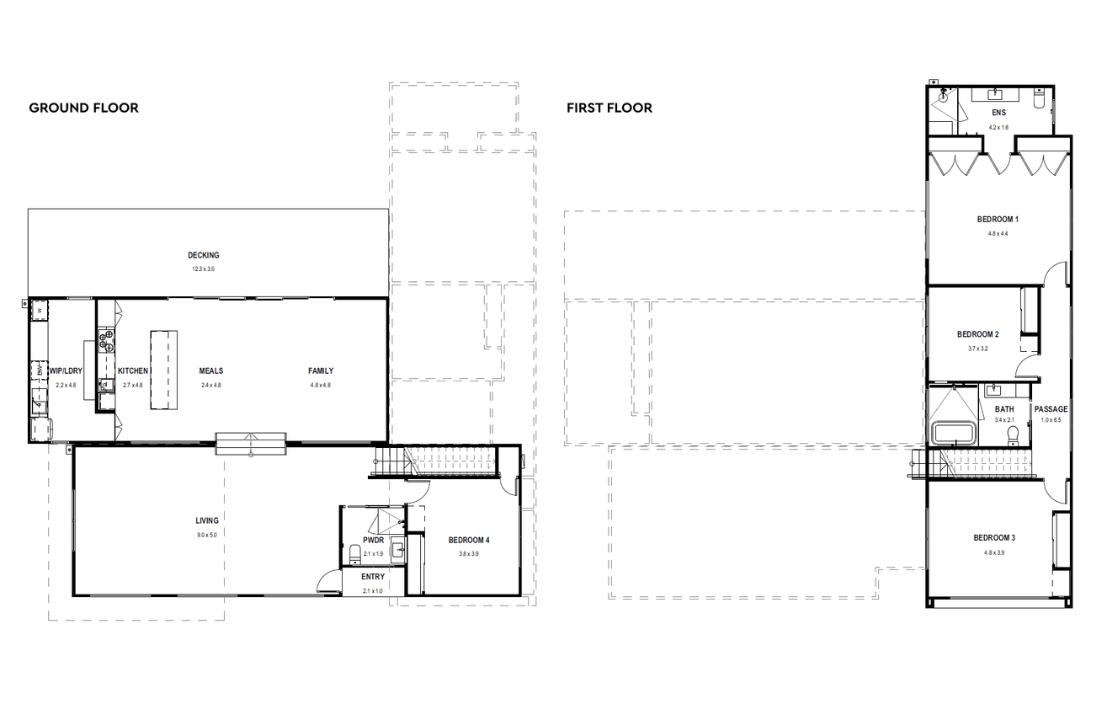
Sơ đồ mặt bằng tầng 1 và tầng 2, tối ưu phân tầng phòng ngủ tiện nghi
Tầng 1 gồm phòng khách, bếp, 1 phòng ngủ lớn, phù hợp người cao tuổi. Tầng 2 có 3 phòng ngủ còn lại, đón gió từ mặt trước và hông nhà. Cầu thang đặt giữa, tối ưu di chuyển và phân chia không gian.
Xem thêm các mẫu thiết kế nhà 2 tầng 4 phòng ngủ lắp ghép tại đây
Nhà 4 phòng ngủ mái Thái lắp ghép

mái Thái thanh thoát, kết hợp kiến trúc truyền thống và hiện đại
Mẫu nhà mái Thái lắp ghép 4 phòng ngủ mang nét kiến trúc truyền thống kết hợp hiện đại. Phần mái dốc đẹp mắt, chống nóng tốt, thoát nước nhanh, tạo hình khối thanh thoát và cao ráo cho ngôi nhà.

Thiết kế mặt bằng đối xứng với các phòng đón sáng tự nhiên ba hướng
Mẫu nhà mái Thái lắp ghép 4 phòng ngủ mang nét kiến trúc truyền thống kết hợp hiện đại. Phần mái dốc đẹp mắt, chống nóng tốt, thoát nước nhanh, tạo hình khối thanh thoát và cao ráo cho ngôi nhà.
Nhà 4 phòng ngủ mái Nhật lắp ghép
Nhà mái Nhật nhẹ nhàng, thanh lịch phù hợp khí hậu Việt Nam
Phong cách mái Nhật giúp ngôi nhà trở nên tinh tế, nhẹ nhàng nhưng vẫn hiện đại. Thiết kế 4 phòng ngủ lắp ghép được bố trí linh hoạt, phù hợp xây dựng tại khu nghỉ dưỡng hoặc vùng ngoại ô.

Mặt bằng bố trí các phòng hợp lý, có hành lang lấy sáng và đón gió tốt
Cấu trúc mái đua rộng che nắng tốt, chống hắt mưa hiệu quả. Phòng ngủ chính có tầm nhìn mở ra sân vườn, các phòng còn lại tiếp giáp hành lang lấy gió từ hướng Nam. Bố trí thông minh tạo sự riêng tư.
Nhà 4 phòng ngủ hiện đại

Nhà lắp ghép hiện đại với khối kiến trúc vuông vắn, tối giản
Thiết kế mang phong cách hiện đại với đường nét vuông vắn, chất liệu kính – thép – panel tạo sự sang trọng và tiết kiệm chi phí. Đây là lựa chọn hàng đầu của gia đình trẻ yêu thích kiến trúc tối giản.

Mặt bằng thiết kế mở, đón ánh sáng tối đa, không gian sống linh hoạt
Phòng khách liên thông bếp tạo không gian mở. Các phòng ngủ bố trí lệch tầng hoặc tách cánh, có cửa sổ kính lớn, đón sáng tối đa. Thiết kế ưu tiên đón gió Đông Nam, tạo sự mát mẻ quanh năm.
Tham khảo các thiết kế nhà DSDhome tại đây
Chi phí thi công nhà lắp ghép 4 phòng ngủ
Chi phí thi công nhà lắp ghép 4 phòng ngủ phụ thuộc vào phương pháp thi công, vật liệu sử dụng và mức độ hoàn thiện nội thất. Hiện nay, ba mô hình phổ biến nhất trên thị trường là: nhà lắp ghép module, nhà lắp ghép panel, và nhà lắp ghép khung thép – mỗi loại có mức chi phí và ưu điểm riêng, phù hợp với nhu cầu và ngân sách khác nhau của từng hộ gia đình.
Nhà lắp ghép module (DSDhome)
Với ưu điểm dễ dàng lắp đặt, nâng tầng và thiết kế thẩm mỹ hiện đại, nhà lắp ghép dạng module của DSDhome là giải pháp tối ưu cho những khách hàng yêu cầu không gian sống linh hoạt, có thể đầu tư theo giai đoạn. Các module 1m được kết hợp linh hoạt để tạo nên tổ hợp nhà ở phù hợp với từng diện tích và công năng:

Thiết kế nhà lắp ghép module thông minh, tiết kiệm chi phí
- DSD Home Single (33,4 m² – 60,7 m²): Chi phí từ 405 triệu đến 694,5 triệu đồng
- DSD Home Double (46,2 m² – 95 m²): Chi phí từ 553 triệu đến 1,117 tỷ đồng
- DSD Home Over (93,1 m² – 104,2 m²): Chi phí từ 1,082 tỷ đến 1,263 tỷ đồng
Với diện tích từ 90 m² trở lên, chủ đầu tư hoàn toàn có thể thiết kế bố cục 4 phòng ngủ tiêu chuẩn, phân chia linh hoạt giữa các tầng hoặc mở rộng theo chiều ngang với cấu trúc module. Đây là lựa chọn lý tưởng cho khách hàng muốn hướng đến một không gian sống thông minh, tiết kiệm thời gian và dễ dàng mở rộng về sau.
Nhà lắp ghép Panel
Nhà lắp ghép sử dụng tấm panel cách nhiệt (EPS, PU hoặc rockwool) là một giải pháp tiết kiệm và phổ biến tại Việt Nam. Nhờ trọng lượng nhẹ và khả năng cách nhiệt cao, loại nhà này có thể thi công nhanh chóng với chi phí thấp hơn khoảng 30%–40% so với nhà truyền thống.

Nhà panel lắp ghép phù hợp với ngân sách
- Chi phí thi công trung bình: từ 275 triệu đến 635 triệu đồng tùy diện tích và mức độ hoàn thiện.
- Diện tích 90–120 m² là phù hợp để bố trí 4 phòng ngủ với không gian sinh hoạt tiện nghi.
Đây là lựa chọn phù hợp với những khách hàng muốn xây nhà nghỉ dưỡng, homestay vùng ven, hoặc gia đình trẻ cần giải pháp tiết kiệm chi phí mà vẫn đảm bảo tiện nghi.
Nhà lắp ghép khung thép
Loại hình nhà lắp ghép khung thép P-series của DSDhome có giá dao động khoảng 5–6 triệu đồng/m². Đây là phương án phù hợp cho nhà ở lâu dài, có yêu cầu cao về độ bền, khả năng mở rộng và kiến trúc hiện đại:

Mẫu biệt thự lắp ghép 2 tầng với chi phí từ 500 triệu
- Với ngân sách khoảng 500 triệu đồng, bạn có thể sở hữu một biệt thự lắp ghép mini 2 tầng, diện tích khoảng 70 m², bố trí 4 phòng ngủ (2 phòng ở tầng lầu, 2 phòng ở tầng trệt), tích hợp 2 nhà vệ sinh và đầy đủ tiện nghi nội thất.
Dòng nhà này được đánh giá cao về mặt thẩm mỹ và kỹ thuật, phù hợp với khách hàng trung lưu đang tìm kiếm một không gian sống nổi bật, hiện đại, khác biệt so với những ngôi nhà truyền thống.
Đơn vị thi công nhà 4 phòng ngủ lắp ghép số 1 Việt Nam
Với những ưu điểm nổi bật đã nêu, mẫu nhà lắp ghép đẹp này được đánh giá là xu hướng xây dựng mới. Nếu bạn đang có nhu cầu xây dựng hoặc thi công nhà lắp ghép, DSDhome sẽ là đối tác tin cậy. Đây là đơn vị tư vấn và thi công nhà module lắp ghép uy tín hàng đầu trên thị trường, với nhiều năm kinh nghiệm và được đông đảo khách hàng tin tưởng.
Các công trình nhà lắp ghép do DSDhome thi công đều đạt chuẩn chất lượng cao. Đội ngũ của DSDhome có chuyên môn cao, luôn cập nhật kiến thức và xu hướng thị trường để tư vấn cho khách hàng những sản phẩm tốt và phù hợp nhất. Trong suốt thời gian hoạt động, công ty đã tạo ra nhiều công trình lắp ghép ấn tượng, có mặt ở nhiều tỉnh thành, và các chủ đầu tư đều hài lòng khi nhận bàn giao. Bạn có thể đến trực tiếp xem mẫu nhà lắp ghép Vũng Tàu để có cái nhìn khách quan về sản phẩm.
Như vậy, chắc hẳn bạn đã hiểu vì sao nhà module lắp ghép trở thành sự lựa chọn số 1 hiện nay. Nếu bạn mong muốn tạo ra không gian sống đẳng cấp với chi phí hợp lý và tiết kiệm, xây dựng nhà module lắp ghép chính là giải pháp tối ưu. Để có ngôi nhà đẹp, ưng ý và bền lâu, hãy liên hệ ngay với DSDhome.
>> Xem thêm các bài viết khác của DSDhome tại đây.
———-
DSDhome – Đơn Vị Thi Công Nhà Lắp Ghép Uy Tín, Chất Lượng
Để có được một ngôi nhà lắp ghép đẹp và vừa ý, bạn nên lựa chọn một đơn vị thi công chất lượng và có nhiều kinh nghiệm. DSDhome tự hào là đơn vị thi công nhà lắp ghép hàng đầu Việt Nam. Những mẫu thiết kế của DSDhome đều theo tiêu chí là thiết kế đẹp, chất lượng và chi phí tối ưu nhất.
———-
Công ty Cổ phần Đầu tư DSD Group
Trụ sở chính: Số 11 Gamuda Leparc Yên Sở, Hoàng Mai, Hà Nội
Tổ hợp căn mẫu & khu nghỉ dưỡng trải nghiệm miền Bắc: TT Thịnh Long, huyện Hải Hậu, tỉnh Nam Định
Nhà máy sản xuất: TT Thịnh Long, huyện Hải Hậu, tỉnh Nam Định
Căn mẫu miền Nam: Xã Túc Trưng, huyện Định Quán, tỉnh Đồng Nai
Hotline: 096.124.9008
Website: dsdhome.vn
