Ý tưởng thiết kế
Với mong muốn mang đến không gian linh hoạt và đa dạng công năng, DSDhome ra mắt giải pháp nhà lắp ghép thông minh với kỹ thuật sắp xếp từ module, dễ dàng lắp đặt, lên tầng và sở hữu thiết kế thẩm mỹ cao. Thiết kế nhà lắp ghép 2 tầng 88m2 là sự kết hợp hài hoà giữa nét hiện đại và truyền thống khi sở hữu không gian nghỉ dưỡng hiện đại và mái hiên gần gũi thiên nhiên. Các module được sắp xếp lên tầng lệch khối một cách sáng tạo, tiện nghi và đầy đủ công năng.

Cấu trúc Nhà lắp ghép 88m2
Nhà lắp ghép 2 tầng 88m2 gồm 25 module ghép lại, có kết cấu bao gồm:
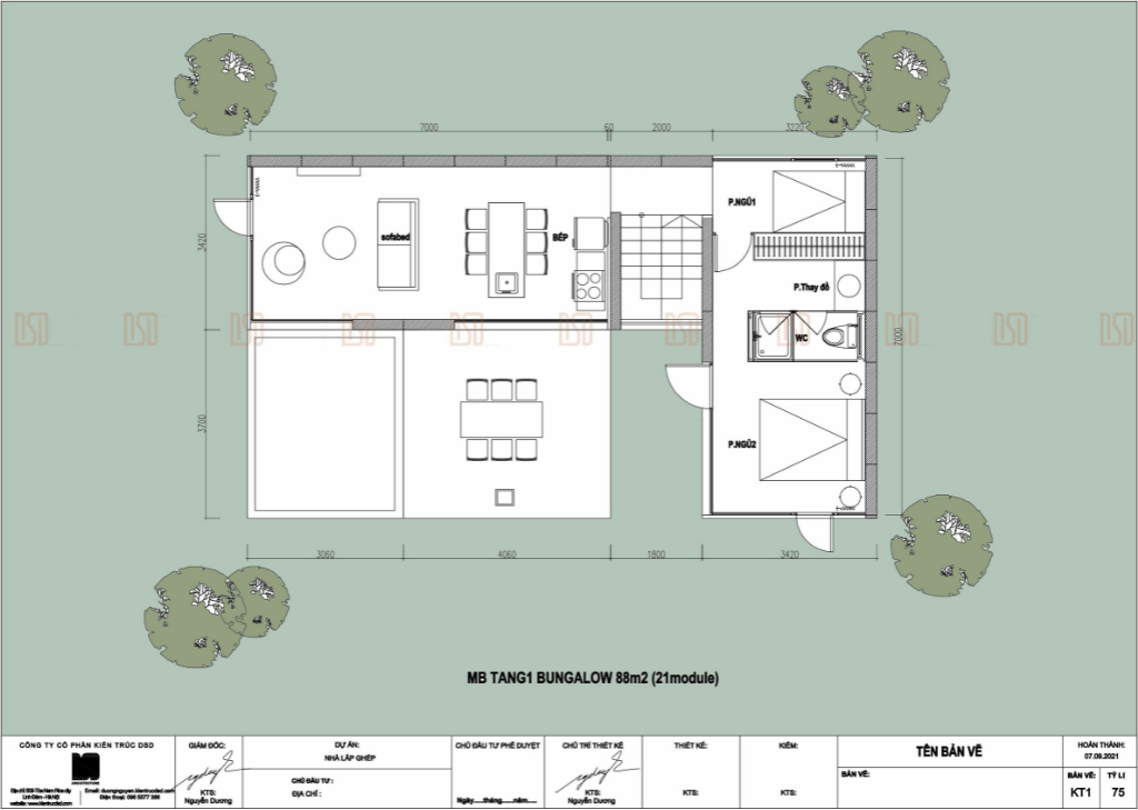
- Phòng khách: Có đầy đủ nội thất từ bàn trà, sofa bed đến các vật trang trí khác như đèn tròn, chậu cây,…
- Phòng bếp: Hệ thống tủ bếp trên, tủ bếp dưới. Và bàn ăn cơm rộng rãi thuận tiện trong sinh hoạt. Ngoài ra thì còn một số phụ kiện thiết yếu như hút mùi, vòi chậu, khay đựng dĩa, thìa… cũng được trang bị đầy đủ.
- 02 Phòng ngủ master: Bao gồm giường ngủ, tủ đựng mini, tab đầu giường.
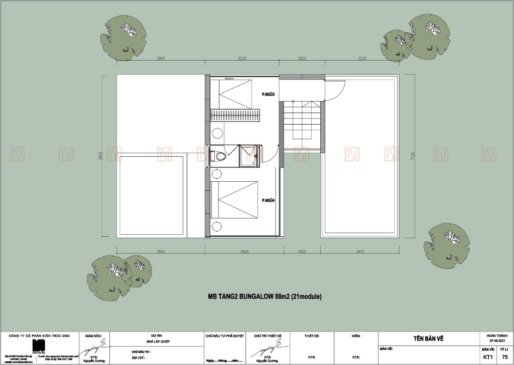
- 02 Phòng ngủ phụ:
- 02 Phòng vệ sinh: Có bồn cầu, vòi sen tắm đứng, cabin tắm….
TẦNG 1

TẦNG2
Vật liệu
Nhà lắp ghép 2 tầng 88m2 của DSDhome sử dụng vật liệu cao cấp, an toàn và thân thiện với môi trường.
- Khung thép: Hệ thống khung thép (1,4mm hay 1,8mm) được cấu tạo bởi module 1m2 có thể chịu lực tốt, tạo độ vững chắc cho công trình. Phần đáy được bọc kín bởi tôn chống han gỉ, chống côn trùng, chuột, bọ có thể làm tổ.
- Tôn sơn tĩnh điện / tôn panel/ tấm ốp nhựa cao cấp vân 3D.
( Khách hàng có thể lựa chọn 1 trong 3 loại vật liệu, phù hợp với nhu cầu đầu tư, thẩm mỹ mong muốn) .
Lớp tôn sơn tĩnh điện: vật liệu tiếp xúc trực tiếp với môi trường, bảo vệ mặt ngoài của công trình. Do đặc tính bền màu, nên khó bị phai màu bởi thời tiết và giữ được tính thẩm mỹ cho công trình.
Tôn Panel: gồm 3 lớp và được bọc tôn mạ kẽm bên ngoài, do đó có khả năng ngăn chặn tia cực tím của mặt trời. Tôn panel có thể hấp thụ nhiệt từ 8 – 20 độ C tạo không gian mát mẻ, ngoài ra còn có thể chống cháy, cách âm và tuổi thọ sử dụng rất cao.
Tấm ốp nhựa vân gỗ 3D: lớp phủ cao cấp theo tiêu chuẩn Nhật Bản với tỉ lệ 60% bột gỗ, 37% bột nhựa HDPE (nhựa nguyên sinh cao cấp), 3% phụ gia và màu, hạn chế được sự cong vênh, phai bạc màu. Đây là loại vật liệu xanh an toàn cho sức khỏe, thân thiện với môi trường.
- Bông khoáng: dày 50mm cách nhiệt, cách âm tốt, thân thiện với môi trường.
- Bạt chống thấm HPDE: giúp chống nước, chống thấm cho công trình. Màng HDPE không bị oxi hóa bởi môi trường axit, không bị xâm thực bởi hóa chất.
- Cemboard: KH có thể sơn lại màu tùy thích hay dán giấy dán tường hoặc ốp gỗ tùy sở thích.
- Mái nhà: Sử dụng tôn cliplock chống dột nước qua đầu vít, tràn nước qua khe, rãnh hở. Khả năng thoát nước và chống tràn của tôn cliplock gấp 2 lần so với tôn sóng thông thường.
- Kính: Sử dụng kính cường lực tạo vách ngăn cho công trình. Thiết kế 3 mặt tiền kính giúp mở rộng view, tăng trải nghiệm sống, hòa mình với thiên nhiên cho người dùng.
- Nội thất: Hai vật liệu sử dụng chính làm nội thất: Gỗ tự nhiên và Gỗ plywood phổ biến ở nước ngoài đảm bảo được vấn đề sức khỏe


Ứng dụng
Với thiết kế đơn giản nhưng vẫn đáp ứng đủ các tiện ích cần thiết. Nhà lắp ghép 2 tầng 88m2 là mẫu nhà được sử dụng phổ biến hiện nay bởi những ưu điểm mà nó mang lại. Thiết kế nhà lắp ghép 2 tầng 88m2 có thể dùng làm là nhà ở nghỉ dưỡng hay hay kinh doanh dịch vụ hay văn phòng đều phù hợp.
Báo giá
Khu vực miền Bắc: 987.800.000 VND
Khu vực miền Nam: 1.105.000.000 VND
LƯU Ý: Giá của nhà lắp ghép 2 tầng 88m2 trên chưa bao gồm các trang thiết bị như tủ lạnh, tivi, máy giặt, điều hoà, bếp điện, thuế VAT và phí vận chuyển. Tùy thuộc vào mục đích và nhu cầu, DSDhome sẽ lắp đặt các hạng mục này theo mong muốn của chủ đầu tư.
Thời gian thi công và lắp đặt
Trong hợp đồng, DSDhome sẽ ghi rõ thời gian chính xác nhưng thời gian trung bình để xây nhà lắp ghép tại DSDhome là khoảng 20 ngày. Vì hầu hết công đoạn đều được thực hiện chủ yếu ở nhà xưởng DSDhome với đội ngũ chuyên nghiệp & máy móc hiện đại, nên thời gian thi công sẽ được rút ngắn đáng kể. Vậy nên chủ đầu tư sẽ không cần tốn quá nhiều công sức và thời gian cho việc giám sát công trình.
LƯU Ý: Nhà DSDhome đã bao gồm toàn bộ nội thất, móng, tec nước. Khách hàng cần chuẩn bị đầu chờ điện nước, bể phốt (hầm thoát wc) để đấu nối với hệ thống ống chờ sẵn của công trình.
Trên đây là một số đặc điểm của nhà lắp ghép 2 tầng 88m2. Nếu khách hàng có bất kỳ thắc mắc nào, hãy liên hệ với DSDhome để được giải đáp.
———————————
Thông tin liên hệ
Công ty Cổ phần Kiến trúc DSD
Trụ sở: Số 11, Gamuda Leparc Yên Sở, Hoàng Mai, Hà Nội
Xưởng phía Bắc: Thị trấn Thịnh Long, huyện Hải Hậu, Nam Định
Hotline: 096.124.9008
Website: https://dsdhome.vn
















